「阪急芝田町ビル」には現在公開できる募集区画がございません。最新の募集状況のご確認、もしくは類似物件のご提案は、こちらよりお問い合わせ下さい。
当日内見希望もよろこんで!
※管理会社様等、物件側の事情でご希望に沿えない場合もございます。
- ご希望の募集区画が無い場合、募集が掛かった際にすぐにご紹介いたします。
- ちなみに、ネット非掲載なだけで、隠し床として存在する場合もございます。
- 現在の区画を分割するなどして、造れる可能性もございます。
- 勿論、類似物件のご紹介もご希望頂ければ喜んでさせて頂きます。
当サイトはご入居希望者様向けのサイトです。ご入居に関するお問合せ以外はお答えいたしかねます
阪急芝田町ビル物件情報
- 住所
- 大阪市北区芝田2-1-1
- 最寄駅
-
大阪メトロ御堂筋線 梅田駅徒歩2分
JR大阪環状線 大阪駅徒歩6分 - 竣工
- 1970年5月
- 耐震
- 旧耐震基準
- 階数
- 地上12階 地下1階
- 用途
- 事務所
- 構造
- S造
- エレベーター
- 1 基
- 空調
- 個別空調
- OAフロア
- その他
- 基準階天井高
- 光ファイバー
- 無し
- トイレ
- 男女別・室外
- 機械警備
- 有り
- 駐車場
- 無し
過去募集していた区画
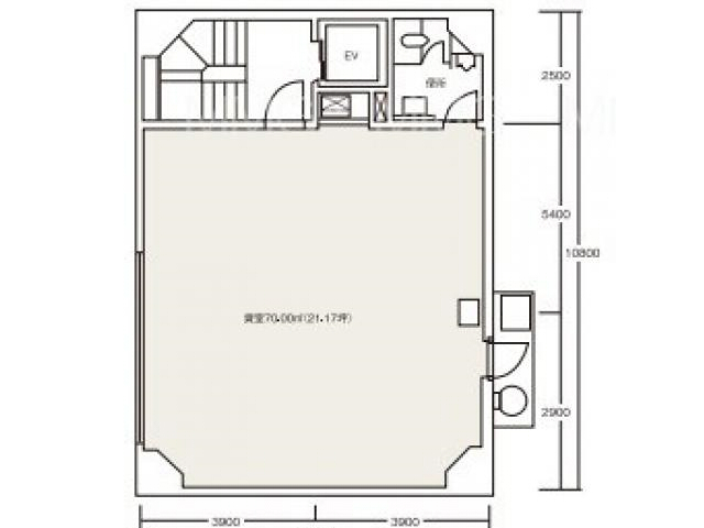
- 5階 21.18坪
- 8階 21.18坪
- 12階 21.17坪







