大阪富国生命ビルの賃貸オフィス・貸事務所【募集情報】
最終更新日:2026/04/15
- 大阪富国生命ビル
- 大阪市北区小松原町2-4
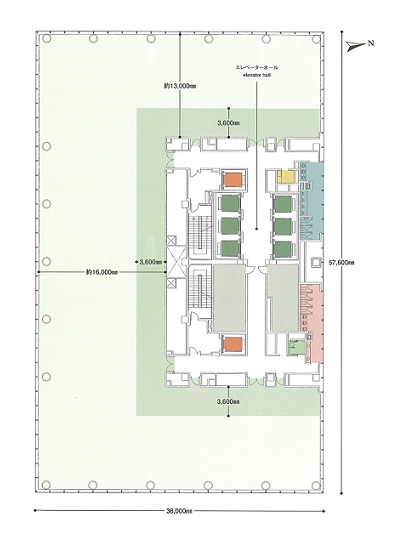
- 竣工/2010年10月 耐震基準/新耐震基準 基準階面積/454坪 地上28階 地上1階建て
大阪富国生命ビルは、大阪梅田駅を代表するオフィスビルの内1棟です。黒を基調としたガラスウォールの美しい外観で、まさにそびえ立つと言う表現が相応しい、存在感のある高層オフィスビルです。
ご興味のある区画を検討中リストに加え、まとめてお問合せ頂けます。
| 検討中リスト | 階 | 面積 | 賃料+共益費 坪単価 |
敷金・保証金 | 入居日 | 検討中リスト | 空室確認日 |
|---|---|---|---|---|---|---|---|
|
6階
|
122.94坪
406.44m²
|
相談
|
12ヶ月
|
2026年4月 | 2026/03/24 | ||
|
8階
|
63.49坪
209.9m²
|
相談
|
12ヶ月
|
即日 | 2026/03/24 | ||
|
12階
|
29.46坪
97.39m²
|
相談
|
12ヶ月
|
即日 | 2026/03/24 | ||
|
24階
|
165.18坪
546.09m²
|
相談
|
12ヶ月
|
即日 | 2026/03/24 |
当日内見希望もよろこんで!
※管理会社様等、物件側の事情でご希望に沿えない場合もございます。
- ご希望の募集区画が無い場合、募集が掛かった際にすぐにご紹介いたします。
- ちなみに、ネット非掲載なだけで、隠し床として存在する場合もございます。
- 現在の区画を分割するなどして、造れる可能性もございます。
- 勿論、類似物件のご紹介もご希望頂ければ喜んでさせて頂きます。
当サイトはご入居希望者様向けのサイトです。ご入居に関するお問合せ以外はお答えいたしかねます
大阪富国生命ビル物件情報
- 住所
- 大阪市北区小松原町2-4
- 最寄駅
-
大阪メトロ谷町線 東梅田駅徒歩2分
大阪メトロ御堂筋線 梅田駅徒歩3分
JR東海道本線 大阪駅徒歩6分 - 竣工
- 2010年10月
- 耐震
- 新耐震基準
- 階数
- 地上28階 地上1階
- 用途
- 事務所
- 構造
- S造
- エレベーター
- 14 基
- 空調
- 個別空調
- OAフロア
- OAフロア
- 基準階天井高
- 2800mm
- 光ファイバー
- 有り
- トイレ
- 男女別・室外
- 機械警備
- 有り
- 駐車場
- 有り
過去募集していた区画
- 2階 443.8坪
- 4階 98.34坪
- 6階 18.82坪
- 6階 15.27坪
- 8階 107.1坪
- 8階 62.2坪
- 8階 92.7坪
- 14階 92.96坪
- 14階 29.83坪
- 14階 29.83坪
- 14階 69.28坪
- 14階 59.24坪
- 15階 29.46坪
- 15階 29.79坪
- 16階 447坪
- 17階 447.78坪
- 17階 223坪
- 19階 447.48坪
- 23階 69.28坪
- 27階 164.48坪

















