阪神神明ビルの賃貸オフィス・貸事務所【募集情報】
最終更新日:2026/03/27
- 阪神神明ビル
- 大阪市北区西天満4-11-22
- 竣工/1977年11月 耐震基準/旧耐震基準 基準階面積/100坪 地上10階 建て
ご興味のある区画を検討中リストに加え、まとめてお問合せ頂けます。
| 検討中リスト | 階 | 面積 | 賃料+共益費 坪単価 |
敷金・保証金 | 入居日 | 検討中リスト | 空室確認日 |
|---|---|---|---|---|---|---|---|
|
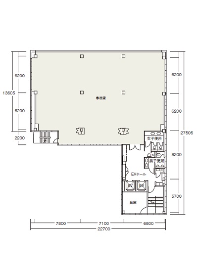
1階
スケルトン仕様(先行 |
32.71坪
108.14m²
|
相談
|
12ヶ月
|
即日 | 2026/03/03 |
当日内見希望もよろこんで!
※管理会社様等、物件側の事情でご希望に沿えない場合もございます。
- ご希望の募集区画が無い場合、募集が掛かった際にすぐにご紹介いたします。
- ちなみに、ネット非掲載なだけで、隠し床として存在する場合もございます。
- 現在の区画を分割するなどして、造れる可能性もございます。
- 勿論、類似物件のご紹介もご希望頂ければ喜んでさせて頂きます。
当サイトはご入居希望者様向けのサイトです。ご入居に関するお問合せ以外はお答えいたしかねます
阪神神明ビル物件情報
- 住所
- 大阪市北区西天満4-11-22
- 最寄駅
-
大阪メトロ谷町線 東梅田駅徒歩7分
京阪中之島線 大江橋駅徒歩9分
JR東西線 北新地駅徒歩8分
京阪中之島線 なにわ橋駅徒歩11分
京阪本線 淀屋橋駅徒歩11分 - 竣工
- 1977年11月
- 耐震
- 旧耐震基準
- 階数
- 地上10階
- 用途
- 事務所 / 店舗
- 構造
- S造
- エレベーター
- 2 基
- 空調
- 個別空調
- OAフロア
- OAフロア
- 基準階天井高
- 2450mm
- 光ファイバー
- 有り
- トイレ
- 男女別・室外
- 機械警備
- 有り
- 駐車場
- 有り
過去募集していた区画
- 1階 32.72坪
- 3階 33.44坪
- 3階 29.86坪
- 4階 29.87坪
- 4階 28.22坪
- 5階 33.44坪
- 5階 58.09坪
- 5階 58.09坪
- 6階 29.87坪
- 6階 28.22坪
- 8階 100.02坪






