梅新パークビルの賃貸オフィス・貸事務所【募集情報】
最終更新日:2026/04/15
- 梅新パークビル
- 大阪市北区西天満4-3-11
- 竣工/1991年9月 耐震基準/新耐震基準
ご興味のある区画を検討中リストに加え、まとめてお問合せ頂けます。
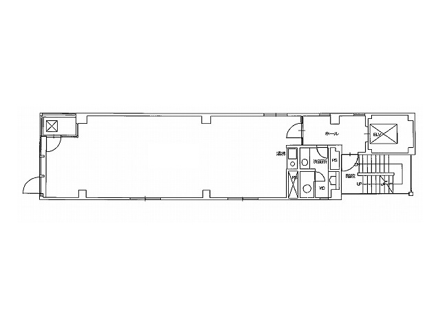
| 検討中リスト | 階 | 面積 | 賃料+共益費 坪単価 |
敷金・保証金 | 入居日 | 検討中リスト | 空室確認日 |
|---|---|---|---|---|---|---|---|
|
2階
|
19坪
62.81m²
|
228,000円
12,000円/坪
|
1,824,000円
|
2026年10月 | 2026/04/15 |
当日内見希望もよろこんで!
※管理会社様等、物件側の事情でご希望に沿えない場合もございます。
- ご希望の募集区画が無い場合、募集が掛かった際にすぐにご紹介いたします。
- ちなみに、ネット非掲載なだけで、隠し床として存在する場合もございます。
- 現在の区画を分割するなどして、造れる可能性もございます。
- 勿論、類似物件のご紹介もご希望頂ければ喜んでさせて頂きます。
当サイトはご入居希望者様向けのサイトです。ご入居に関するお問合せ以外はお答えいたしかねます
梅新パークビル物件情報
- 住所
- 大阪市北区西天満4-3-11
- 最寄駅
-
大阪メトロ堺筋線 南森町駅徒歩6分
大阪メトロ谷町線 東梅田駅徒歩7分
京阪中之島線 なにわ橋駅徒歩10分
京阪本線 淀屋橋駅徒歩13分 - 竣工
- 1991年9月
- 耐震
- 新耐震基準
- 階数
- 地上8階
- 用途
- 事務所
- 構造
- S造、一部RC造
- エレベーター
- 1 基
- 空調
- 個別空調
- OAフロア
- その他
- 基準階天井高
- 光ファイバー
- 有り
- トイレ
- 男女共用・室内
- 機械警備
- 有り
- 駐車場
- 無し
過去募集していた区画
- 1階 10坪
- 3階 19坪
- 5階 19坪







