メッセージ梅田ビルの賃貸オフィス・貸事務所【募集情報】
最終更新日:2026/03/04
- メッセージ梅田ビル
- 大阪市北区曾根崎2-16-19
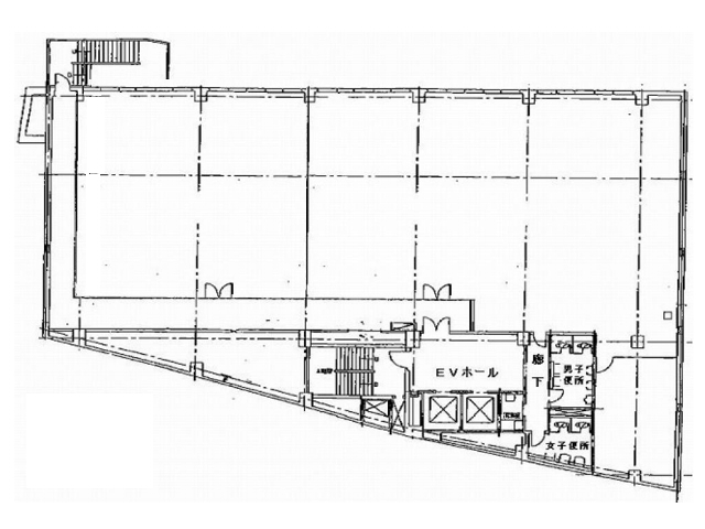
- 竣工/1967年9月 耐震基準/耐震補強済 基準階面積/152坪 地上8階 地下2階建て
メッセージ梅田ビルは、梅田地下道直結のテナントビルで、ご来客の多いテナント様にもオススメです。2013年大規模リニューアル工事完了(空調・LED・1Fエントランス・共用トイレ等)、耐震工事済。
「メッセージ梅田ビル」には現在公開できる募集区画がございません。最新の募集状況のご確認、もしくは類似物件のご提案は、こちらよりお問い合わせ下さい。
当日内見希望もよろこんで!
※管理会社様等、物件側の事情でご希望に沿えない場合もございます。
- ご希望の募集区画が無い場合、募集が掛かった際にすぐにご紹介いたします。
- ちなみに、ネット非掲載なだけで、隠し床として存在する場合もございます。
- 現在の区画を分割するなどして、造れる可能性もございます。
- 勿論、類似物件のご紹介もご希望頂ければ喜んでさせて頂きます。
当サイトはご入居希望者様向けのサイトです。ご入居に関するお問合せ以外はお答えいたしかねます
メッセージ梅田ビル物件情報
- 住所
- 大阪市北区曾根崎2-16-19
- 最寄駅
-
大阪メトロ御堂筋線 梅田駅徒歩3分
大阪メトロ谷町線 東梅田駅徒歩2分
JR東海道本線 大阪駅徒歩5分 - 竣工
- 1967年9月
- 耐震
- 耐震補強済
- 階数
- 地上8階 地下2階
- 用途
- 事務所 / 店舗
- 構造
- S造
- エレベーター
- 2 基
- 空調
- 個別空調
- OAフロア
- OAフロア
- 基準階天井高
- 2500mm
- 光ファイバー
- 有り
- トイレ
- 男女別・室外
- 機械警備
- 有り
- 駐車場
- 有り
過去募集していた区画
- 1階 393.53坪
- 4階 44.12坪
- 4階 71.97坪
- 5階 71.97坪
- 6階 89.78坪
- 6階 44.12坪
- 6階 22坪
- 7階 21.53坪
- 7階 43.06坪
- 7階 44.53坪
- 7階 22.59坪

























