阪急産業梅田ビルの賃貸オフィス・貸事務所【募集情報】
最終更新日:2026/01/13
- 阪急産業梅田ビル
- 大阪市北区太融寺町6-8
- 竣工/1989年3月 耐震基準/新耐震基準
阪急産業梅田ビルは、大阪市北区太融寺町に位置する貸店舗・オフィスビルです。泉の広場を地上に出てすぐ、新御堂筋に面した角ビルで、視認性とアクセス性に優れます。1フロア1テナント。
ご興味のある区画を検討中リストに加え、まとめてお問合せ頂けます。
| 検討中リスト | 階 | 面積 | 賃料+共益費 坪単価 |
敷金・保証金 | 入居日 | 検討中リスト | 空室確認日 |
|---|---|---|---|---|---|---|---|
|
4階
申込 |
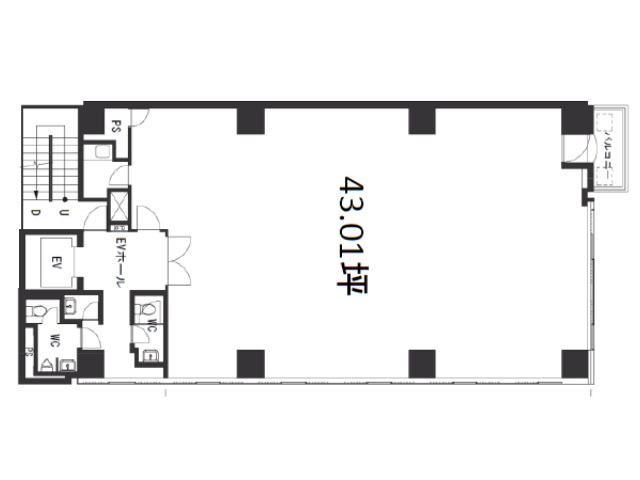
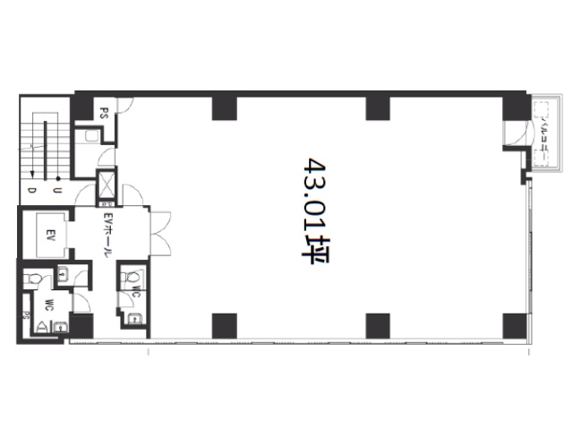
43.01坪
142.19m²
|
645,150円
15,000円/坪
|
10ヶ月
|
2026年2月 | 2026/01/13 | ||
|
8階
|
43.01坪
142.19m²
|
731,170円
17,000円/坪
|
10ヶ月
|
2026年5月 | 2026/01/13 | ||
|
9階
申込 |
43.01坪
142.19m²
|
731,170円
17,000円/坪
|
10ヶ月
|
2026年4月 | 2026/01/13 |
当日内見希望もよろこんで!
※管理会社様等、物件側の事情でご希望に沿えない場合もございます。
- ご希望の募集区画が無い場合、募集が掛かった際にすぐにご紹介いたします。
- ちなみに、ネット非掲載なだけで、隠し床として存在する場合もございます。
- 現在の区画を分割するなどして、造れる可能性もございます。
- 勿論、類似物件のご紹介もご希望頂ければ喜んでさせて頂きます。
当サイトはご入居希望者様向けのサイトです。ご入居に関するお問合せ以外はお答えいたしかねます
阪急産業梅田ビル物件情報
- 住所
- 大阪市北区太融寺町6-8
- 最寄駅
-
大阪メトロ谷町線 東梅田駅徒歩5分
大阪メトロ御堂筋線 梅田駅徒歩7分
JR大阪環状線 大阪駅徒歩8分
大阪メトロ四つ橋線 西梅田駅徒歩10分 - 竣工
- 1989年3月
- 耐震
- 新耐震基準
- 階数
- 地上9階 地上1階
- 用途
- 事務所 / 店舗 / その他
- 構造
- SRC造
- エレベーター
- 1 基
- 空調
- 個別空調
- OAフロア
- OAフロア
- 基準階天井高
- 2600mm
- 光ファイバー
- 有り
- トイレ
- 男女別・室外
- 機械警備
- 有り
- 駐車場
- 無し
過去募集していた区画
- 3階 43.01坪
- 5階 66.8坪
- 6階 43.01坪
- 7階 43.01坪






