アプローズタワーの賃貸オフィス・貸事務所【募集情報】
最終更新日:2026/03/03
- アプローズタワー
- 大阪市北区茶屋町19-19
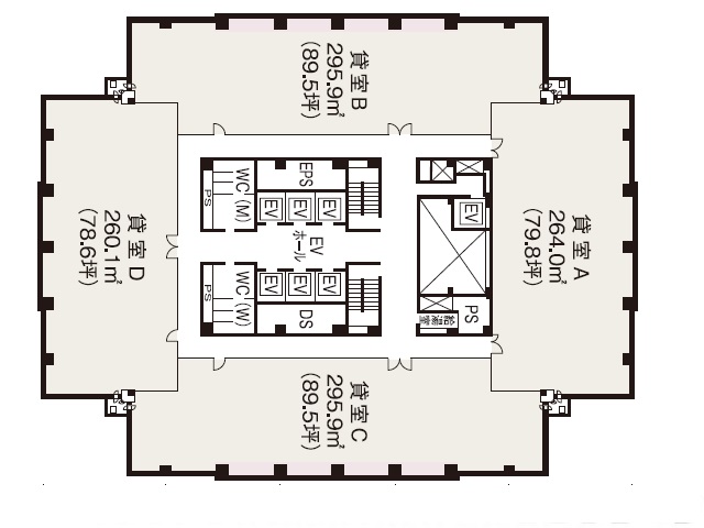
- 竣工/1992年11月 耐震基準/新耐震基準 基準階面積/369坪 地上34階 地下3階建て
アプローズタワーは、高さ161mの茶屋町のランドマークタワーです。オフィスだけでなく、ホテル阪急インターナショナル、梅田芸術劇場、各種ショップや飲食店街が併設された、大規模な複合施設です。
「アプローズタワー」には現在公開できる募集区画がございません。最新の募集状況のご確認、もしくは類似物件のご提案は、こちらよりお問い合わせ下さい。
当日内見希望もよろこんで!
※管理会社様等、物件側の事情でご希望に沿えない場合もございます。
- ご希望の募集区画が無い場合、募集が掛かった際にすぐにご紹介いたします。
- ちなみに、ネット非掲載なだけで、隠し床として存在する場合もございます。
- 現在の区画を分割するなどして、造れる可能性もございます。
- 勿論、類似物件のご紹介もご希望頂ければ喜んでさせて頂きます。
当サイトはご入居希望者様向けのサイトです。ご入居に関するお問合せ以外はお答えいたしかねます
アプローズタワー物件情報
- 住所
- 大阪市北区茶屋町19-19
- 最寄駅
-
大阪メトロ御堂筋線 中津駅徒歩5分
阪急京都本線 梅田駅徒歩6分
JR大阪環状線 大阪駅徒歩10分 - 竣工
- 1992年11月
- 耐震
- 新耐震基準
- 階数
- 地上34階 地下3階
- 用途
- 事務所
- 構造
- SRC造
- エレベーター
- 7 基
- 空調
- セントラル空調
- OAフロア
- OAフロア
- 基準階天井高
- 2700mm
- 光ファイバー
- 有り
- トイレ
- 男女別・室外
- 機械警備
- 有り
- 駐車場
- 有り
過去募集していた区画
- 10階 89.5坪
- 11階 79.86坪
- 11階 89.5坪
- 11階 368.54坪
- 12階 89.21坪
- 12階 89.5坪
- 14階 368.54坪
- 15階 169.36坪
- 15階 368.54坪
- 16階 169.3坪
- 17階 78.68坪
- 17階 89.5坪
- 17階 89.51坪
- 19階 89.51坪
- 21階 89.5坪
- 21階 79.86坪
- 21階 247.9坪
- 22階 113.23坪
- 23階 79.8坪



























