中津インタービルの賃貸オフィス・貸事務所【募集情報】
最終更新日:2026/02/18
- 中津インタービル
- 大阪市北区中津1-17-25
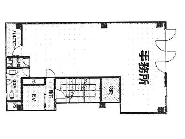
- 竣工/1992年4月 耐震基準/新耐震基準 基準階面積/26坪 地上9階 地上1階建て
中津インタービルは、大阪市北区中津1丁目の賃貸オフィスビルです。中津駅から徒歩2分と言う駅近立地、1フロア1テナント利用の小型オフィスです。男女トイレ共用なのがネックポイントですが、賃料はリーズナブルです。
ご興味のある区画を検討中リストに加え、まとめてお問合せ頂けます。
| 検討中リスト | 階 | 面積 | 賃料+共益費 坪単価 |
敷金・保証金 | 入居日 | 検討中リスト | 空室確認日 |
|---|---|---|---|---|---|---|---|
|
4階
401 |
26.34坪
87.08m²
|
250,230円
9,500円/坪
|
1ヶ月
|
2026年4月 | 2026/01/05 |
当日内見希望もよろこんで!
※管理会社様等、物件側の事情でご希望に沿えない場合もございます。
- ご希望の募集区画が無い場合、募集が掛かった際にすぐにご紹介いたします。
- ちなみに、ネット非掲載なだけで、隠し床として存在する場合もございます。
- 現在の区画を分割するなどして、造れる可能性もございます。
- 勿論、類似物件のご紹介もご希望頂ければ喜んでさせて頂きます。
当サイトはご入居希望者様向けのサイトです。ご入居に関するお問合せ以外はお答えいたしかねます
中津インタービル物件情報
- 住所
- 大阪市北区中津1-17-25
- 最寄駅
-
大阪メトロ御堂筋線 中津駅徒歩2分
阪急宝塚本線 中津駅徒歩9分
阪急京都本線 梅田駅徒歩12分 - 竣工
- 1992年4月
- 耐震
- 新耐震基準
- 階数
- 地上9階 地上1階
- 用途
- 事務所
- 構造
- S造
- エレベーター
- 1 基
- 空調
- 個別空調
- OAフロア
- タイルカーペット
- 基準階天井高
- 2800mm
- 光ファイバー
- 無し
- トイレ
- 男女共用・室内
- 機械警備
- 有り
- 駐車場
- 無し
過去募集していた区画
- 3階 26.34坪
- 5階 26.34坪
- 6階 26.34坪
- 8階 20.78坪
























