ご興味のある区画を検討中リストに加え、まとめてお問合せ頂けます。
| 検討中リスト | 階 | 面積 | 賃料+共益費 坪単価 |
敷金・保証金 | 入居日 | 検討中リスト | 空室確認日 |
|---|---|---|---|---|---|---|---|
|
8階
4 |
31.15坪
102.98m²
|
相談
|
12ヶ月
|
2026年5月 | 2026/02/27 | ||
|
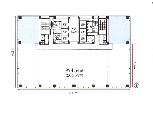
18階
|
264.54坪
874.57m²
|
相談
|
12ヶ月
|
2026年5月 | 2026/02/27 |
当日内見希望もよろこんで!
※管理会社様等、物件側の事情でご希望に沿えない場合もございます。
- ご希望の募集区画が無い場合、募集が掛かった際にすぐにご紹介いたします。
- ちなみに、ネット非掲載なだけで、隠し床として存在する場合もございます。
- 現在の区画を分割するなどして、造れる可能性もございます。
- 勿論、類似物件のご紹介もご希望頂ければ喜んでさせて頂きます。
当サイトはご入居希望者様向けのサイトです。ご入居に関するお問合せ以外はお答えいたしかねます
梅田ゲートタワー物件情報
- 住所
- 大阪市北区鶴野町1-9
- 最寄駅
- 阪神本線 梅田駅徒歩3分
- 竣工
- 2010年3月
- 耐震
- 新耐震基準
- 階数
- 地上21階 地下1階
- 用途
- 事務所
- 構造
- S造
- エレベーター
- 6 基
- 空調
- 個別空調
- OAフロア
- OAフロア
- 基準階天井高
- 2700mm
- 光ファイバー
- 有り
- トイレ
- 男女別・室外
- 機械警備
- 有り
- 駐車場
- 有り
過去募集していた区画
- 3階 122.27坪
- 5階 264.54坪
- 6階 264.54坪
- 7階 264.54坪
- 8階 90.41坪
- 8階 31.82坪
- 8階 90.41坪
- 9階 67.76坪
- 9階 67.76坪
- 10階 54.5坪
- 10階 123.57坪
- 11階 69.06坪
- 11階 264.54坪
- 12階 264.54坪
- 13階 123.56坪
- 13階 264.54坪
- 14階 178.07坪
- 14階 67.67坪
- 15階 264.54坪
- 17階 264.54坪
- 19階 264.54坪
- 20階 264.54坪
- 21階 67.76坪























