トリシマオフィスワンビルの賃貸オフィス・貸事務所【募集情報】
最終更新日:2025/11/04
- トリシマオフィスワンビル
- 大阪市北区天満1-5-2
- 竣工/1993年12月 耐震基準/新耐震基準
天満橋駅徒歩3分のオフィスビルです。EV2機・個別空調完備・駐車場有りと設備は充実しており、谷町筋と大川に面しておりますので視認性にも優れております。事務所でお探しのお客様にはオススメの物件です。
当日内見希望もよろこんで!
※管理会社様等、物件側の事情でご希望に沿えない場合もございます。
- ご希望の募集区画が無い場合、募集が掛かった際にすぐにご紹介いたします。
- ちなみに、ネット非掲載なだけで、隠し床として存在する場合もございます。
- 現在の区画を分割するなどして、造れる可能性もございます。
- 勿論、類似物件のご紹介もご希望頂ければ喜んでさせて頂きます。
当サイトはご入居希望者様向けのサイトです。ご入居に関するお問合せ以外はお答えいたしかねます
トリシマオフィスワンビル物件情報
- 住所
- 大阪市北区天満1-5-2
- 最寄駅
-
京阪本線 天満橋駅徒歩3分
JR東西線 大阪天満宮駅徒歩12分
JR東西線 大阪城北詰駅徒歩12分 - 竣工
- 1993年12月
- 耐震
- 新耐震基準
- 階数
- 地上9階 地上1階
- 用途
- 事務所
- 構造
- S造
- エレベーター
- 2 基
- 空調
- 個別空調
- OAフロア
- タイルカーペット
- 基準階天井高
- 2400mm
- 光ファイバー
- 有り
- トイレ
- 男女別・室外
- 機械警備
- 有り
- 駐車場
- 有り
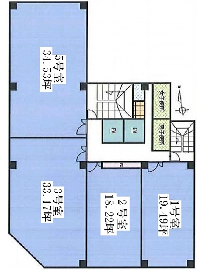
過去募集していた区画
- 2階 48坪
- 2階 32坪
- 2階 15.12坪
- 3階 32坪
- 3階 30.7坪
- 4階 27.16坪
- 4階 52.05坪
- 4階 13.68坪
- 4階 48坪
- 5階 33.7坪
- 5階 18.22坪
- 7階 56.19坪
- 8階 34.53坪
- 8階 27.53坪
- 9階 15.12坪

















