当日内見希望もよろこんで!
※管理会社様等、物件側の事情でご希望に沿えない場合もございます。
- ご希望の募集区画が無い場合、募集が掛かった際にすぐにご紹介いたします。
- ちなみに、ネット非掲載なだけで、隠し床として存在する場合もございます。
- 現在の区画を分割するなどして、造れる可能性もございます。
- 勿論、類似物件のご紹介もご希望頂ければ喜んでさせて頂きます。
当サイトはご入居希望者様向けのサイトです。ご入居に関するお問合せ以外はお答えいたしかねます
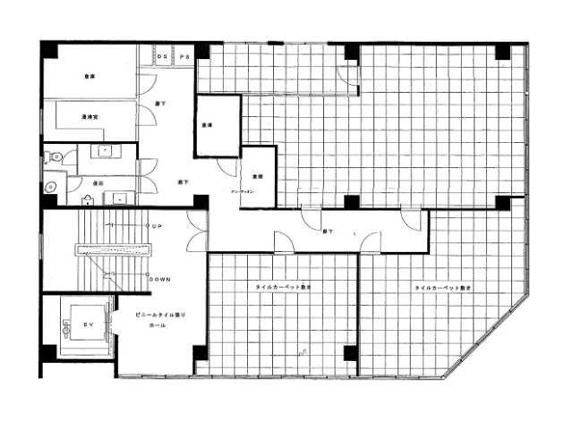
中村屋ビル物件情報
- 住所
- 大阪市北区堂島2-1-2
- 最寄駅
- 大阪メトロ四つ橋線 西梅田駅徒歩5分
- 竣工
- 1964年9月
- 耐震
- 旧耐震基準
- 階数
- 地上8階 地上1階
- 用途
- 事務所
- 構造
- S造
- エレベーター
- 1 基
- 空調
- 個別空調
- OAフロア
- タイルカーペット / Pタイル
- 基準階天井高
- 光ファイバー
- 不明
- トイレ
- 男女別・室外
- 機械警備
- 不明
- 駐車場
- 無し
過去募集していた区画
- B1階 30坪
- 1階 52.4坪
- 2階 62坪
- 3階 17坪
- 4階 21坪
- 5階 4.5坪
- 5階 19.2坪
- 6階 22.4坪







