浪速ビルの賃貸オフィス・貸事務所【募集情報】
最終更新日:2026/04/03
- 浪速ビル
- 大阪市北区万歳町4-12
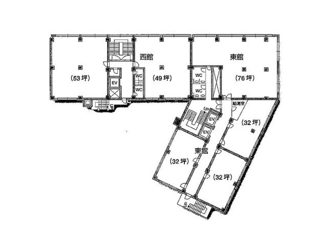
- 竣工/1960年4月 耐震基準/旧耐震基準 基準階面積/308坪 地上10階 地下2階建て
浪速ビルは、中崎町駅から徒歩1分の賃貸オフィスビルです。都島通に面した大規模ビルで、老舗ビルの存在感がございます。ビル内はレトロな雰囲気ですが、水回りや貸室などはリニューアルされており快適です。
ご興味のある区画を検討中リストに加え、まとめてお問合せ頂けます。
| 検討中リスト | 階 | 面積 | 賃料+共益費 坪単価 |
敷金・保証金 | 入居日 | 検討中リスト | 空室確認日 |
|---|---|---|---|---|---|---|---|
|
2階
204 |
31坪
102.49m²
|
403,000円
13,000円/坪
|
6ヶ月
|
即日 | 2026/04/03 | ||
|
4階
東館405A |
16坪
52.9m²
|
216,000円
13,500円/坪
|
6ヶ月
|
即日 | 2026/04/03 | ||
|
5階
504 |
31坪
102.49m²
|
403,000円
13,000円/坪
|
6ヶ月
|
即日 | 2026/04/03 | ||
|
8階
東館804 |
31坪
102.49m²
|
434,000円
14,000円/坪
|
6ヶ月
|
2026年6月 | 2026/04/03 | ||
|
8階
東館803 |
76坪
251.26m²
|
1,026,000円
13,500円/坪
|
6ヶ月
|
2026年6月 | 2026/04/03 |
当日内見希望もよろこんで!
※管理会社様等、物件側の事情でご希望に沿えない場合もございます。
- ご希望の募集区画が無い場合、募集が掛かった際にすぐにご紹介いたします。
- ちなみに、ネット非掲載なだけで、隠し床として存在する場合もございます。
- 現在の区画を分割するなどして、造れる可能性もございます。
- 勿論、類似物件のご紹介もご希望頂ければ喜んでさせて頂きます。
当サイトはご入居希望者様向けのサイトです。ご入居に関するお問合せ以外はお答えいたしかねます
浪速ビル物件情報
- 住所
- 大阪市北区万歳町4-12
- 最寄駅
-
大阪メトロ谷町線 中崎町駅徒歩1分
阪急神戸本線 梅田駅徒歩10分
大阪メトロ谷町線 東梅田駅徒歩12分
JR大阪環状線 大阪駅徒歩15分 - 竣工
- 1960年4月
- 耐震
- 旧耐震基準
- 階数
- 地上10階 地下2階
- 用途
- 事務所 / 店舗
- 構造
- SRC造
- エレベーター
- 3 基
- 空調
- 個別空調
- OAフロア
- OAフロア相談可 / タイルカーペット
- 基準階天井高
- 2500mm
- 光ファイバー
- 有り
- トイレ
- 男女別・室外
- 機械警備
- 無し
- 駐車場
- 無し
過去募集していた区画
- 1階 25坪
- 1階 32坪
- 1階 50坪
- 2階 53坪
- 2階 48坪
- 4階 124坪
- 4階 76坪
- 4階 16坪
- 5階 48坪
- 5階 29坪
- 5階 16坪
- 5階 16坪
- 5階 16坪
- 5階 76坪
- 5階 24坪
- 6階 16坪
- 6階 16坪
- 6階 31坪
- 7階 16坪
- 7階 31坪
- 8階 171坪
- 8階 32坪
- 8階 48坪
- 8階 32坪
- 8階 29坪
- 8階 53坪





















