新大阪エクセルビルの賃貸オフィス・貸事務所【募集情報】
最終更新日:2026/04/01
- 新大阪エクセルビル
- 大阪市淀川区宮原1-19-10
- 竣工/1980年1月 耐震基準/旧耐震基準
ご興味のある区画を検討中リストに加え、まとめてお問合せ頂けます。
| 検討中リスト | 階 | 面積 | 賃料+共益費 坪単価 |
敷金・保証金 | 入居日 | 検討中リスト | 空室確認日 |
|---|---|---|---|---|---|---|---|
|
9階
901 |
5.75坪
19.01m²
|
63,000円
10,956円/坪
|
110,000円
|
2026年5月 | 2026/04/01 |
当日内見希望もよろこんで!
※管理会社様等、物件側の事情でご希望に沿えない場合もございます。
- ご希望の募集区画が無い場合、募集が掛かった際にすぐにご紹介いたします。
- ちなみに、ネット非掲載なだけで、隠し床として存在する場合もございます。
- 現在の区画を分割するなどして、造れる可能性もございます。
- 勿論、類似物件のご紹介もご希望頂ければ喜んでさせて頂きます。
当サイトはご入居希望者様向けのサイトです。ご入居に関するお問合せ以外はお答えいたしかねます
新大阪エクセルビル物件情報
- 住所
- 大阪市淀川区宮原1-19-10
- 最寄駅
-
大阪メトロ御堂筋線 新大阪駅徒歩5分
大阪メトロ御堂筋線 東三国駅徒歩7分
JR東海道本線 東淀川駅徒歩10分
大阪メトロ御堂筋線 西中島南方駅徒歩17分 - 竣工
- 1980年1月
- 耐震
- 旧耐震基準
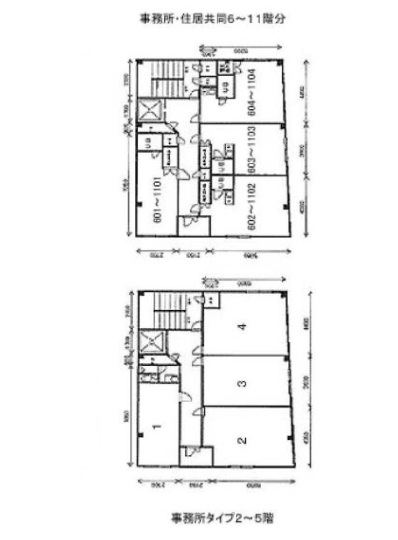
- 階数
- 地上11階
- 用途
- 事務所
- 構造
- SRC造
- エレベーター
- 1 基
- 空調
- 個別空調
- OAフロア
- その他
- 基準階天井高
- 光ファイバー
- 有り
- トイレ
- 不明
- 機械警備
- 有り
- 駐車場
- 無し
過去募集していた区画
- 2階 13.3坪
- 2階 4.45坪
- 3階 7.16坪
- 4階 6.01坪
- 4階 4.45坪
- 4階 7.16坪
- 4階 7.29坪
- 5階 4.45坪
- 5階 7.29坪
- 9階 6.01坪
- 9階 7.16坪
- 10階 7.29坪
- 10階 6.01坪
- 11階 5.75坪











