ONEST新大阪スクエアの賃貸オフィス・貸事務所【募集情報】
最終更新日:2026/03/24
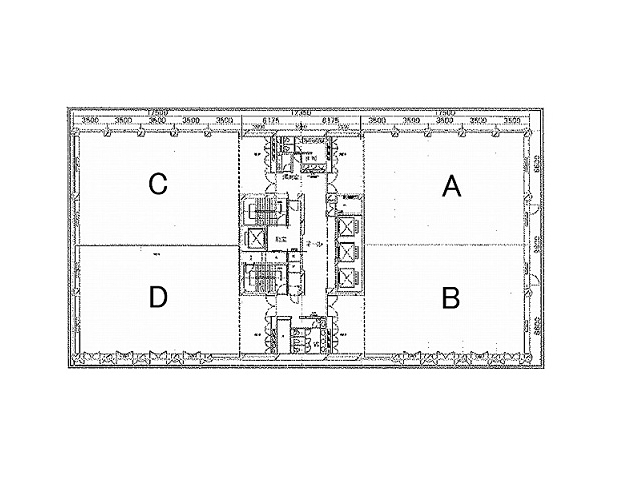
- ONEST新大阪スクエア
- 大阪市淀川区宮原4-5-36
- 竣工/1992年5月 耐震基準/新耐震基準 基準階面積/267坪 地上12階 建て
ONEST新大阪スクエアは、新大阪駅から徒歩7分の大規模オフィスビルです。落ち着いた雰囲気の純オフィスビルです。レイアウト効率の良い貸室形状が魅力です。
「ONEST新大阪スクエア」には現在公開できる募集区画がございません。最新の募集状況のご確認、もしくは類似物件のご提案は、こちらよりお問い合わせ下さい。
当日内見希望もよろこんで!
※管理会社様等、物件側の事情でご希望に沿えない場合もございます。
- ご希望の募集区画が無い場合、募集が掛かった際にすぐにご紹介いたします。
- ちなみに、ネット非掲載なだけで、隠し床として存在する場合もございます。
- 現在の区画を分割するなどして、造れる可能性もございます。
- 勿論、類似物件のご紹介もご希望頂ければ喜んでさせて頂きます。
当サイトはご入居希望者様向けのサイトです。ご入居に関するお問合せ以外はお答えいたしかねます
ONEST新大阪スクエア物件情報
- 住所
- 大阪市淀川区宮原4-5-36
- 最寄駅
-
JR東海道本線 新大阪駅徒歩7分
大阪メトロ御堂筋線 東三国駅徒歩10分
JR東海道本線 東淀川駅徒歩14分
阪急宝塚本線 三国駅徒歩17分 - 竣工
- 1992年5月
- 耐震
- 新耐震基準
- 階数
- 地上12階
- 用途
- 事務所
- 構造
- S造
- エレベーター
- 4 基
- 空調
- セントラル空調
- OAフロア
- OAフロア
- 基準階天井高
- 2500mm
- 光ファイバー
- 有り
- トイレ
- 男女別・室外
- 機械警備
- 有り
- 駐車場
- 有り
過去募集していた区画
- 1階 33坪
- 2階 110.42坪
- 2階 43.3坪
- 2階 11.9坪
- 2階 67.43坪
- 2階 66.89坪
- 3階 67.43坪
- 6階 133.78坪
- 6階 67.43坪
- 6階 133.78坪
- 6階 267.56坪
- 8階 134.87坪
- 8階 67.43坪
- 9階 67.43坪
- 10階 67.43坪
- 11階 67.43坪
- 12階 134.87坪
- 12階 134.87坪
























