明治安田生命十三ビルの賃貸オフィス・貸事務所【募集情報】
最終更新日:2026/04/01
- 明治安田生命十三ビル
- 大阪市淀川区新北野1-2-13
- 竣工/1987年3月 耐震基準/新耐震基準 基準階面積/157坪 地上9階 地上1階建て
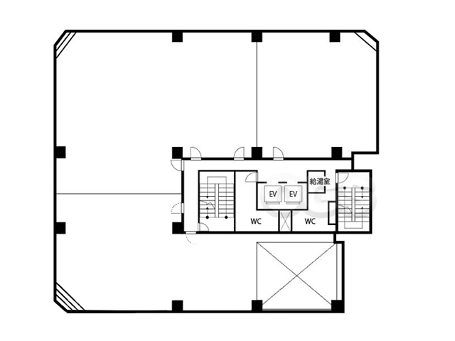
明治安田生命十三ビルは、十三駅から徒歩5分の大型オフィスビルです。共用部を中心に置いたコの字型の貸室形状です。お部屋を分割すると綺麗な四角形になるため、分割して使うのに適しています。
ご興味のある区画を検討中リストに加え、まとめてお問合せ頂けます。
| 検討中リスト | 階 | 面積 | 賃料+共益費 坪単価 |
敷金・保証金 | 入居日 | 検討中リスト | 空室確認日 |
|---|---|---|---|---|---|---|---|
|
2階
|
30.04坪
99.31m²
|
相談
|
相談
|
即日 | 2026/04/01 | ||
|
2階
|
83.92坪
277.44m²
|
相談
|
相談
|
即日 | 2026/04/01 | ||
|
2階
統合案 |
113.96坪
376.75m²
|
相談
|
相談
|
即日 | 2026/04/01 |
当日内見希望もよろこんで!
※管理会社様等、物件側の事情でご希望に沿えない場合もございます。
- ご希望の募集区画が無い場合、募集が掛かった際にすぐにご紹介いたします。
- ちなみに、ネット非掲載なだけで、隠し床として存在する場合もございます。
- 現在の区画を分割するなどして、造れる可能性もございます。
- 勿論、類似物件のご紹介もご希望頂ければ喜んでさせて頂きます。
当サイトはご入居希望者様向けのサイトです。ご入居に関するお問合せ以外はお答えいたしかねます
明治安田生命十三ビル物件情報
- 住所
- 大阪市淀川区新北野1-2-13
- 最寄駅
-
阪急神戸本線 十三駅徒歩5分
阪急神戸本線 中津駅徒歩19分
JR東海道本線 塚本駅徒歩19分 - 竣工
- 1987年3月
- 耐震
- 新耐震基準
- 階数
- 地上9階 地上1階
- 用途
- 事務所
- 構造
- S造
- エレベーター
- 2 基
- 空調
- 個別空調
- OAフロア
- OAフロア
- 基準階天井高
- 光ファイバー
- 有り
- トイレ
- 男女別・室外
- 機械警備
- 有り
- 駐車場
- 無し
過去募集していた区画
- 1階 18.97坪
- 1階 15.33坪
- 1階 23.24坪
- 3階 159.64坪
- 4階 15.02坪
- 5階 51.29坪
- 6階 59.19坪
- 8階 122.87坪
- 8階 37.36坪
- 9階 157坪






