花原第2ビルの賃貸オフィス・貸事務所【募集情報】
最終更新日:2025/12/10
- 花原第2ビル
- 大阪市淀川区西中島4-11-27
- 竣工/1983年3月 耐震基準/新耐震基準
黄土色のタイル張りで視認性が高いオフィスビル
大阪市営地下鉄御堂筋線「西中島南方」駅から徒歩5分の立地
広々としたエントランスで落ち着いた雰囲気を感じるビルです。角ビルなので採光が良く明るいオフィスで働きたい企業様にオススメです。
大阪市営地下鉄御堂筋線「西中島南方」駅から徒歩5分の立地
広々としたエントランスで落ち着いた雰囲気を感じるビルです。角ビルなので採光が良く明るいオフィスで働きたい企業様にオススメです。
ご興味のある区画を検討中リストに加え、まとめてお問合せ頂けます。
| 検討中リスト | 階 | 面積 | 賃料+共益費 坪単価 |
敷金・保証金 | 入居日 | 検討中リスト | 空室確認日 |
|---|---|---|---|---|---|---|---|
|
2階
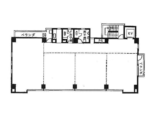
201 ワンフロア |
67.3坪
222.49m²
|
相談
|
2,019,000円
|
即日 | 2025/12/10 |
当日内見希望もよろこんで!
※管理会社様等、物件側の事情でご希望に沿えない場合もございます。
- ご希望の募集区画が無い場合、募集が掛かった際にすぐにご紹介いたします。
- ちなみに、ネット非掲載なだけで、隠し床として存在する場合もございます。
- 現在の区画を分割するなどして、造れる可能性もございます。
- 勿論、類似物件のご紹介もご希望頂ければ喜んでさせて頂きます。
当サイトはご入居希望者様向けのサイトです。ご入居に関するお問合せ以外はお答えいたしかねます
花原第2ビル物件情報
- 住所
- 大阪市淀川区西中島4-11-27
- 最寄駅
-
大阪メトロ御堂筋線 西中島南方駅徒歩5分
大阪メトロ御堂筋線 新大阪駅徒歩8分 - 竣工
- 1983年3月
- 耐震
- 新耐震基準
- 階数
- 地上8階
- 用途
- 事務所 / 店舗
- 構造
- SRC造
- エレベーター
- 1 基
- 空調
- 個別空調
- OAフロア
- OAフロア / タイルカーペット
- 基準階天井高
- 2500mm
- 光ファイバー
- 有り
- トイレ
- 男女別・室外
- 機械警備
- 有り
- 駐車場
- 無し
過去募集していた区画
- 1階 38.68坪
- 4階 13.5坪
- 5階 13.5坪
- 6階 13.5坪
- 6階 19坪
- 7階 13.8坪








