新大阪生原ビルの賃貸オフィス・貸事務所【募集情報】
最終更新日:2026/03/24
- 新大阪生原ビル
- 大阪市淀川区西中島4-7-4
- 竣工/1974年10月 耐震基準/旧耐震基準
ご興味のある区画を検討中リストに加え、まとめてお問合せ頂けます。
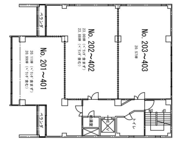
| 検討中リスト | 階 | 面積 | 賃料+共益費 坪単価 |
敷金・保証金 | 入居日 | 検討中リスト | 空室確認日 |
|---|---|---|---|---|---|---|---|
|
2階
203 |
26.34坪
87.08m²
|
相談
|
相談
|
2026年4月 | 2026/03/24 | ||
|
3階
ワンフロア |
81.53坪
269.54m²
|
相談
|
相談
|
2026年4月 | 2026/03/24 | ||
|
3階
302 |
29.44坪
97.33m²
|
相談
|
相談
|
2026年4月 | 2026/03/24 | ||
|
3階
303 |
26.34坪
87.08m²
|
相談
|
相談
|
2026年4月 | 2026/03/24 | ||
|
3階
301 |
25.75坪
85.13m²
|
相談
|
相談
|
2026年4月 | 2026/03/24 | ||
|
4階
ワンフロア |
81.53坪
269.54m²
|
相談
|
相談
|
2026年4月 | 2026/03/24 | ||
|
4階
401 |
25.75坪
85.13m²
|
相談
|
相談
|
2026年4月 | 2026/03/24 | ||
|
4階
402 |
29.44坪
97.33m²
|
相談
|
相談
|
2026年4月 | 2026/03/24 | ||
|
4階
403 |
26.34坪
87.08m²
|
相談
|
相談
|
2026年4月 | 2026/03/24 |
当日内見希望もよろこんで!
※管理会社様等、物件側の事情でご希望に沿えない場合もございます。
- ご希望の募集区画が無い場合、募集が掛かった際にすぐにご紹介いたします。
- ちなみに、ネット非掲載なだけで、隠し床として存在する場合もございます。
- 現在の区画を分割するなどして、造れる可能性もございます。
- 勿論、類似物件のご紹介もご希望頂ければ喜んでさせて頂きます。
当サイトはご入居希望者様向けのサイトです。ご入居に関するお問合せ以外はお答えいたしかねます
新大阪生原ビル物件情報
- 住所
- 大阪市淀川区西中島4-7-4
- 最寄駅
-
大阪メトロ御堂筋線 西中島南方駅徒歩3分
阪急京都本線 南方駅徒歩3分 - 竣工
- 1974年10月
- 耐震
- 旧耐震基準
- 階数
- 地上7階 地下1階
- 用途
- 事務所 / 店舗
- 構造
- SRC造
- エレベーター
- 1 基
- 空調
- 個別空調
- OAフロア
- タイルカーペット
- 基準階天井高
- 光ファイバー
- 有り
- トイレ
- 男女別・室外
- 機械警備
- 有り
- 駐車場
- 無し
過去募集していた区画
- 2階 23坪
- 2階 21.2坪
- 5階 23坪






