アストロ新大阪ビルの賃貸オフィス・貸事務所【募集情報】
最終更新日:2026/03/09
- アストロ新大阪ビル
- 大阪市淀川区西中島5-7-18
- 竣工/1986年12月 耐震基準/新耐震基準
静かなオフィス環境をお探しの企業様にオススメのビル
大阪市営地下鉄御堂筋線「西中島南方駅」から徒歩5分、地下鉄御堂筋線「新大阪」駅から徒歩6分の立地
築年数は経っておりますが、清掃管理が行き届いておりエントランス・共用部ともに清潔感がありオススメの物件です。
大阪市営地下鉄御堂筋線「西中島南方駅」から徒歩5分、地下鉄御堂筋線「新大阪」駅から徒歩6分の立地
築年数は経っておりますが、清掃管理が行き届いておりエントランス・共用部ともに清潔感がありオススメの物件です。
ご興味のある区画を検討中リストに加え、まとめてお問合せ頂けます。
| 検討中リスト | 階 | 面積 | 賃料+共益費 坪単価 |
敷金・保証金 | 入居日 | 検討中リスト | 空室確認日 |
|---|---|---|---|---|---|---|---|
|
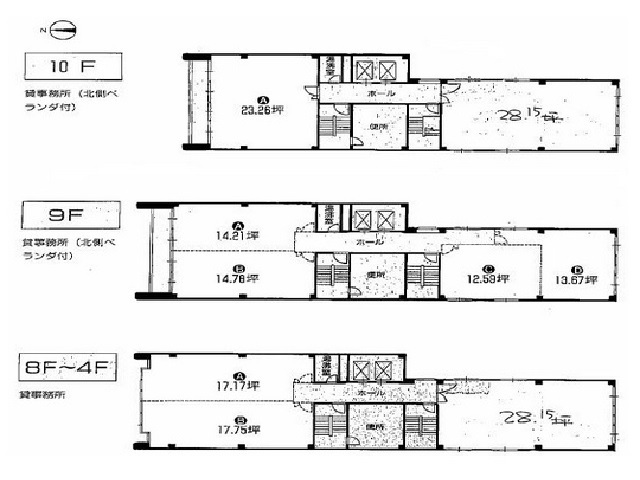
4階
403内定 |
28.15坪
93.06m²
|
相談
|
相談
|
2026年4月 | 2026/03/09 | ||
|
9階
902内定 |
14.78坪
48.86m²
|
相談
|
相談
|
即日 | 2026/03/09 |
当日内見希望もよろこんで!
※管理会社様等、物件側の事情でご希望に沿えない場合もございます。
- ご希望の募集区画が無い場合、募集が掛かった際にすぐにご紹介いたします。
- ちなみに、ネット非掲載なだけで、隠し床として存在する場合もございます。
- 現在の区画を分割するなどして、造れる可能性もございます。
- 勿論、類似物件のご紹介もご希望頂ければ喜んでさせて頂きます。
当サイトはご入居希望者様向けのサイトです。ご入居に関するお問合せ以外はお答えいたしかねます
アストロ新大阪ビル物件情報
- 住所
- 大阪市淀川区西中島5-7-18
- 最寄駅
-
大阪メトロ御堂筋線 西中島南方駅徒歩5分
阪急京都本線 南方駅徒歩8分
大阪メトロ御堂筋線 新大阪駅徒歩8分
阪急京都本線 崇禅寺駅徒歩13分 - 竣工
- 1986年12月
- 耐震
- 新耐震基準
- 階数
- 地上10階
- 用途
- 事務所
- 構造
- S造
- エレベーター
- 2 基
- 空調
- 個別空調
- OAフロア
- その他
- 基準階天井高
- 光ファイバー
- 無し
- トイレ
- 男女別・室外
- 機械警備
- 無し
- 駐車場
- 無し
過去募集していた区画
- 2階 38.09坪
- 2階 15.07坪
- 2階 14.29坪
- 3階 12.6坪
- 3階 15.07坪
- 3階 14.29坪
- 4階 17.75坪
- 4階 13.67坪
- 4階 12.59坪
- 5階 35.64坪
- 6階 28.15坪
- 7階 28.15坪
- 7階 17.17坪
- 7階 17.75坪
- 8階 12.6坪
- 8階 17.75坪
- 9階 28.15坪
- 9階 14.21坪
- 9階 14.21坪
- 9階 14.78坪
- 9階 14.78坪
- 10階 23.26坪
- 10階 28.15坪
- 10階 23.26坪
- 10階 28.15坪






