「タニコー新大阪ビル」には現在公開できる募集区画がございません。最新の募集状況のご確認、もしくは類似物件のご提案は、こちらよりお問い合わせ下さい。
当日内見希望もよろこんで!
※管理会社様等、物件側の事情でご希望に沿えない場合もございます。
- ご希望の募集区画が無い場合、募集が掛かった際にすぐにご紹介いたします。
- ちなみに、ネット非掲載なだけで、隠し床として存在する場合もございます。
- 現在の区画を分割するなどして、造れる可能性もございます。
- 勿論、類似物件のご紹介もご希望頂ければ喜んでさせて頂きます。
当サイトはご入居希望者様向けのサイトです。ご入居に関するお問合せ以外はお答えいたしかねます
タニコー新大阪ビル物件情報
- 住所
- 大阪市淀川区東三国2-38-7
- 最寄駅
- 大阪メトロ御堂筋線 東三国駅徒歩2分
- 竣工
- 要確認
- 耐震
- 旧耐震基準
- 階数
- 地上1階 地上1階
- 用途
- 事務所
- 構造
- S造
- エレベーター
- 空調
- 個別空調
- OAフロア
- その他
- 基準階天井高
- 光ファイバー
- 無し
- トイレ
- 不明
- 機械警備
- 無し
- 駐車場
- 無し
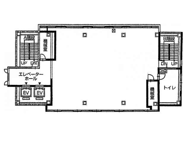
過去募集していた区画
- 6階 55.51坪
- 7階 50.78坪



