大真ビルの賃貸オフィス・貸事務所【募集情報】
最終更新日:2026/05/27
- 大真ビル
- 東大阪市長田東4-2-32
- 竣工/1984年1月 耐震基準/新耐震基準
ご興味のある区画を検討中リストに加え、まとめてお問合せ頂けます。
| 検討中リスト | 階 | 面積 | 賃料+共益費 坪単価 |
敷金・保証金 | 入居日 | 検討中リスト | 空室確認日 |
|---|---|---|---|---|---|---|---|
|
2階
203 |
11.38坪
37.62m²
|
72,832円
6,400円/坪
|
569,000円
|
2026年8月 | 2026/05/27 | ||
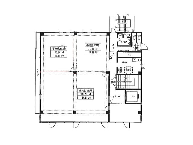
|
4階
401 |
34.95坪
115.54m²
|
223,680円
6,400円/坪
|
1,747,500円
|
相談 | 2026/05/27 | ||
|
8階
802 |
9.49坪
31.37m²
|
60,736円
6,400円/坪
|
474,500円
|
2026年5月 | 2026/05/27 | ||
|
10階
1001 |
33.38坪
110.35m²
|
213,632円
6,400円/坪
|
1,669,000円
|
相談 | 2026/05/27 |
当日内見希望もよろこんで!
※管理会社様等、物件側の事情でご希望に沿えない場合もございます。
- ご希望の募集区画が無い場合、募集が掛かった際にすぐにご紹介いたします。
- ちなみに、ネット非掲載なだけで、隠し床として存在する場合もございます。
- 現在の区画を分割するなどして、造れる可能性もございます。
- 勿論、類似物件のご紹介もご希望頂ければ喜んでさせて頂きます。
当サイトはご入居希望者様向けのサイトです。ご入居に関するお問合せ以外はお答えいたしかねます
大真ビル物件情報
- 住所
- 東大阪市長田東4-2-32
- 最寄駅
-
近鉄けいはんな線 長田駅徒歩5分
近鉄けいはんな線 荒本駅徒歩20分
JR片町線(学研都市線) 徳庵駅徒歩25分
JR片町線(学研都市線) 鴻池新田駅徒歩28分 - 竣工
- 1984年1月
- 耐震
- 新耐震基準
- 階数
- 地上10階
- 用途
- 事務所 / 店舗
- 構造
- S造
- エレベーター
- 1 基
- 空調
- 個別空調
- OAフロア
- その他
- 基準階天井高
- 光ファイバー
- 有り
- トイレ
- 男女別・室外
- 機械警備
- 有り
- 駐車場
- 有り
過去募集していた区画
- 1階 74.23坪
- 1階 83.18坪
- 2階 14.81坪
- 2階 9.49坪
- 4階 12.86坪
- 5階 34.95坪
- 5階 12.11坪
- 6階 57.07坪
- 6階 12.86坪
- 6階 34.95坪
- 7階 9.49坪
- 7階 9.49坪
- 7階 12.86坪
- 8階 12.86坪
- 9階 14.08坪


















