ご興味のある区画を検討中リストに加え、まとめてお問合せ頂けます。
| 検討中リスト | 階 | 面積 | 賃料+共益費 坪単価 |
敷金・保証金 | 入居日 | 検討中リスト | 空室確認日 |
|---|---|---|---|---|---|---|---|
|
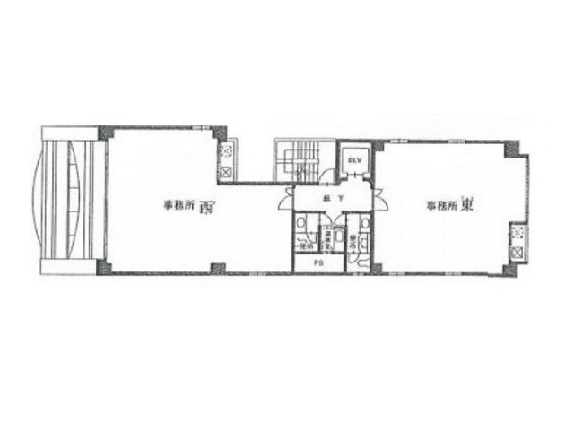
7階
701 |
19坪
62.81m²
|
285,000円
15,000円/坪
|
10ヶ月
|
2026年5月 | 2026/04/01 |
当日内見希望もよろこんで!
※管理会社様等、物件側の事情でご希望に沿えない場合もございます。
- ご希望の募集区画が無い場合、募集が掛かった際にすぐにご紹介いたします。
- ちなみに、ネット非掲載なだけで、隠し床として存在する場合もございます。
- 現在の区画を分割するなどして、造れる可能性もございます。
- 勿論、類似物件のご紹介もご希望頂ければ喜んでさせて頂きます。
当サイトはご入居希望者様向けのサイトです。ご入居に関するお問合せ以外はお答えいたしかねます
淀屋橋サテライトビル物件情報
- 住所
- 大阪市中央区高麗橋4-5-13
- 最寄駅
- 大阪メトロ御堂筋線 淀屋橋駅徒歩3分
- 竣工
- 1989年3月
- 耐震
- 新耐震基準
- 階数
- 地上9階
- 用途
- 事務所
- 構造
- SRC造
- エレベーター
- 1 基
- 空調
- 個別空調
- OAフロア
- その他
- 基準階天井高
- 2500mm
- 光ファイバー
- 無し
- トイレ
- 男女別・室外
- 機械警備
- 無し
- 駐車場
- 無し
過去募集していた区画
- 2階 27.9坪
- 2階 27.9坪
- 3階 30.82坪
- 3階 18.99坪
- 3階 30.82坪
- 3階 30.82坪
- 3階 30.82坪
- 3階 30.82坪
- 3階 30.82坪
- 4階 18.99坪
- 4階 19坪
- 5階 30.82坪
- 5階 30.82坪
- 5階 18.99坪
- 7階 22.26坪
- 8階 18.99坪
- 8階 18.99坪
- 8階 17坪





















