淀屋橋三井ビルディングの賃貸オフィス・貸事務所【募集情報】
- 淀屋橋三井ビルディング
- 大阪市中央区今橋4-1-1
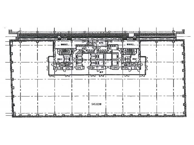
- 竣工/2008年3月 耐震基準/新耐震基準 基準階面積/546坪 地上16階 地下3階建て
淀屋橋三井ビルディングは制震構造を採用しており、耐震性に優れた安心の設計です。オフィスフロアのスペックは、天井高2,800mm、OAフロア(100mm)、システムグリッド天井、LED照明、Low-Eペアガラスなど最新の設備が整っており、快適かつエネルギー効率に優れたオフィス環境を提供しています。床荷重は500㎏/㎡(ヘビーデューティーゾーンは1t/㎡)で、重量物の取り扱いも対応可能です。さらに、荷物用エレベーターやリフレッシュルームが設置されており、テナントの快適な業務運営を支えています。
省エネや環境性能にも配慮されたこの大規模高層ビルは、ビジネスの拠点として非常に魅力的ですが、その分賃料は高めに設定されています。とはいえ、駅直結であり、大通り沿いの便利な立地、ビルスペックの高さを重視する企業にとっては、魅力的なオフィスビルです。
「淀屋橋三井ビルディング」には現在公開できる募集区画がございません。最新の募集状況のご確認、もしくは類似物件のご提案は、こちらよりお問い合わせ下さい。
当日内見希望もよろこんで!
- ご希望の募集区画が無い場合、募集が掛かった際にすぐにご紹介いたします。
- ちなみに、ネット非掲載なだけで、隠し床として存在する場合もございます。
- 現在の区画を分割するなどして、造れる可能性もございます。
- 勿論、類似物件のご紹介もご希望頂ければ喜んでさせて頂きます。
淀屋橋三井ビルディング物件情報
- 住所
- 大阪市中央区今橋4-1-1
- 最寄駅
-
大阪メトロ御堂筋線 淀屋橋駅徒歩1分
大阪メトロ四つ橋線 肥後橋駅徒歩5分
京阪中之島線 大江橋駅徒歩8分
京阪中之島線 なにわ橋駅徒歩11分 - 竣工
- 2008年3月
- 耐震
- 新耐震基準
- 階数
- 地上16階 地下3階
- 用途
- 事務所
- 構造
- SRC造
- エレベーター
- 6 基
- 空調
- 個別空調
- OAフロア
- OAフロア
- 基準階天井高
- 2800mm
- 光ファイバー
- 有り
- トイレ
- 男女別・室外
- 機械警備
- 有り
- 駐車場
- 有り
淀屋橋三井ビルディングのおすすめポイント
・淀屋橋駅直結
・ランドマーク性(ODONAとの複合ビル)
・高い貸室設備(2800㎜の天井高、100㎜のOAフロア、システムグリッド天井、ヘビーデューティーフロア、インターネットコントロール空調)
・省エネ・環境配慮(屋上緑化、Low-e複層ガラス、庇とブラインド、南側の2階デッキの屋根と建物外壁部に薄型太陽電池とLEDライトを組み込んだガラスを採用、昼間は太陽光で発電し建物内の商用電力の一部に使用、夜間は省電力LEDライトとして使用、自動調光システム採用)
・嬉しい共用設備(リフレッシュルーム有り)
淀屋橋三井ビルディング 竣工当時の記事(平成20年3月27日)
下記『』三井不動産公式サイトより
『三井不動産株式会社は、独立行政法人都市再生機構が施行する「淀屋橋地区第一種市街地再開発事業(大阪市中央区)」において、特定建築者として再開発事業を推進してまいりましたが、明日3月28日、オフィスと商業施設の複合用途機能を持つ「淀屋橋三井ビルディング」が竣工いたします。
当再開発事業は、敷地を南北に二分し、南側・B棟を「淀屋橋三井ビルディング」として当社および他の地権者とともに区分所有いたします。なお、北側・A棟については三井住友海上火災保険株式会社が単独にて所有いたします。
当社は、淀屋橋三井ビルディングにおいて、他の地権者の保有するオフィス床のマスターリース業務(建物の賃借ならびに転貸業務)を受託するとともに、淀屋橋三井ビルディング全体の運営管理を行います。
また、両棟の地下1階から地上2階は一体の商業施設となり、当社は三井住友海上火災保険の持ち分をマスターリースのうえ、自らの持ち分とあわせて、商業施設全体の運営管理を行います。なおこの商業施設は「淀屋橋odona(オドナ)」として平成20年5月30日にグランドオープンの予定です。
当再開発は大阪のビジネスエリアの中心地区に立地し、メインストリートである御堂筋に面するとともに、地下鉄御堂筋線「淀屋橋」駅にも直結しています。
外観は、御堂筋の歴史と文化を継承する風格を持ちながら、先進性を表現するものとなるよう、建物を高層部・中層部・基壇部の3層に分け、素材もガラス・金属・石を組み合わせることにより変化を持たせ、品格のある陰影を持ったデザインとしました』
『3階から16階のオフィスフロアは、1フロア約1,804m2(13階から16階は約1,237m2)、奥行17mの無柱スペースとし、天井高2,800mm、OAフロア100mmを確保しました。外壁サッシュには「喫煙室排気対応スリット」を設け、専有部内喫煙室設置にも対応しています。また、13階セットバック部分には屋上緑化を施し、設備面においては、Low−eガラスの採用や、窓に庇を設置することにより室内への熱射負荷を減らすなど、環境にも配慮しています。
オフィステナントは、監査法人トーマツ・税理士法人トーマツ、日本生命保険相互会社、株式会社韓国外換銀行、株式会社OGIホールディングス等の入居が決定しております。
当社は、「ワーカーズ・ファースト〜働く人にいちばんの場所であること〜」の理念に基づき、大阪のビジネスエリアの中枢にふさわしいオフィス機能と商業施設機能を併せ持つ淀屋橋三井ビルディングの運営管理を通して、引き続き地域の活性化と賑わいの創出に努めてまいります。』
過去募集していた区画
- 3階 365坪
- 3階 5.52坪
- 3階 96.77坪
- 3階 122.06坪
- 3階 58.06坪
- 3階 191.07坪
- 3階 51.87坪
- 3階 133坪
- 3階 51.87坪
- 3階 122.06坪
- 3階 5.52坪
- 3階 94.3坪
- 3階 365坪
- 3階 96.77坪
- 3階 36.23坪
- 4階 101.43坪
- 4階 130坪
- 5階 130.24坪
- 5階 38.74坪
- 6階 545.82坪
- 6階 180.8坪
- 6階 374.36坪
- 14階 57坪
- 15階 49.64坪
- 15階 49.64坪




















