当日内見希望もよろこんで!
※管理会社様等、物件側の事情でご希望に沿えない場合もございます。
- ご希望の募集区画が無い場合、募集が掛かった際にすぐにご紹介いたします。
- ちなみに、ネット非掲載なだけで、隠し床として存在する場合もございます。
- 現在の区画を分割するなどして、造れる可能性もございます。
- 勿論、類似物件のご紹介もご希望頂ければ喜んでさせて頂きます。
当サイトはご入居希望者様向けのサイトです。ご入居に関するお問合せ以外はお答えいたしかねます
秀和ビル物件情報
- 住所
- 大阪市中央区内本町1-2-14
- 最寄駅
- 大阪メトロ谷町線 谷町四丁目駅徒歩1分
- 竣工
- 1985年1月
- 耐震
- 新耐震基準
- 階数
- 地上10階 地上1階
- 用途
- 事務所 / 店舗
- 構造
- S造
- エレベーター
- 1 基
- 空調
- 個別空調
- OAフロア
- タイルカーペット / Pタイル
- 基準階天井高
- 2500mm
- 光ファイバー
- 有り
- トイレ
- 男女別・室外
- 機械警備
- 有り
- 駐車場
- 無し
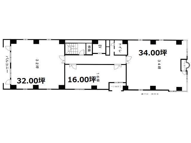
過去募集していた区画
- 1階 47.5坪
- 2階 34坪
- 2階 32坪
- 2階 13.5坪
- 2階 32坪
- 2階 26.2坪
- 4階 34坪
- 4階 28.5坪
- 4階 26.2坪
- 5階 26.2坪
- 5階 34坪
- 5階 16坪
- 5階 32坪
- 6階 32坪
- 6階 16坪
- 6階 26.2坪
- 6階 16坪
- 7階 68.2坪
- 7階 68.2坪
- 7階 42.1坪
- 7階 26.2坪
- 8階 32坪
- 10階 65.5坪






























