平一ビルの賃貸オフィス・貸事務所【募集情報】
最終更新日:2026/02/18
- 平一ビル
- 大阪市中央区平野町1-6-11
- 竣工/1993年8月 耐震基準/新耐震基準
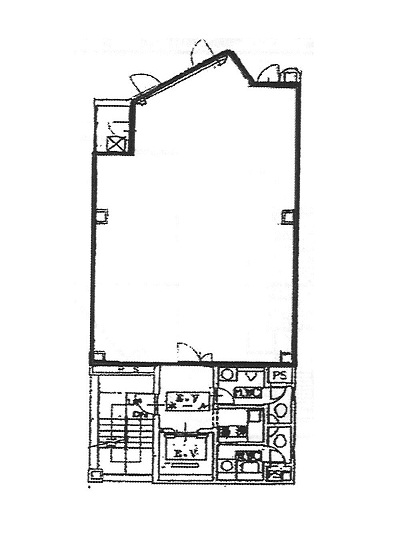
堺筋線、京阪本線北浜駅徒歩5分の立地。1フロア1テナント物件で貸室形状も使いやすいオフィスビルになります。
ご興味のある区画を検討中リストに加え、まとめてお問合せ頂けます。
| 検討中リスト | 階 | 面積 | 賃料+共益費 坪単価 |
敷金・保証金 | 入居日 | 検討中リスト | 空室確認日 |
|---|---|---|---|---|---|---|---|
|
8階
|
32.49坪
107.41m²
|
258,800円
7,966円/坪
|
10ヶ月
|
即日 | 2026/01/30 |
当日内見希望もよろこんで!
※管理会社様等、物件側の事情でご希望に沿えない場合もございます。
- ご希望の募集区画が無い場合、募集が掛かった際にすぐにご紹介いたします。
- ちなみに、ネット非掲載なだけで、隠し床として存在する場合もございます。
- 現在の区画を分割するなどして、造れる可能性もございます。
- 勿論、類似物件のご紹介もご希望頂ければ喜んでさせて頂きます。
当サイトはご入居希望者様向けのサイトです。ご入居に関するお問合せ以外はお答えいたしかねます
平一ビル物件情報
- 住所
- 大阪市中央区平野町1-6-11
- 最寄駅
-
京阪本線 北浜駅徒歩5分
大阪メトロ中央線 堺筋本町駅徒歩10分
京阪中之島線 なにわ橋駅徒歩11分 - 竣工
- 1993年8月
- 耐震
- 新耐震基準
- 階数
- 地上9階
- 用途
- 事務所
- 構造
- S造
- エレベーター
- 1 基
- 空調
- 個別空調
- OAフロア
- タイルカーペット
- 基準階天井高
- 2350mm
- 光ファイバー
- 有り
- トイレ
- 男女別・室外
- 機械警備
- 有り
- 駐車場
- 無し
過去募集していた区画
- 2階 28.71坪
- 4階 32.49坪
- 6階 32.49坪
- 7階 32.49坪
- 8階 28.58坪
- 9階 32.49坪




















