フシマン三陽ビルの賃貸オフィス・貸事務所【募集情報】
最終更新日:2025/10/02
- フシマン三陽ビル
- 大阪市中央区内久宝寺町4-3-8
- 竣工/1993年6月 耐震基準/新耐震基準
ご興味のある区画を検討中リストに加え、まとめてお問合せ頂けます。
| 検討中リスト | 階 | 面積 | 賃料+共益費 坪単価 |
敷金・保証金 | 入居日 | 検討中リスト | 空室確認日 |
|---|---|---|---|---|---|---|---|
|
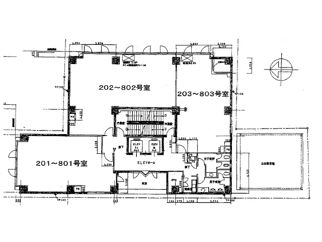
7階
701 |
26.85坪
88.77m²
|
236,483円
8,808円/坪
|
10ヶ月
|
即日 | 2025/10/02 |
当日内見希望もよろこんで!
※管理会社様等、物件側の事情でご希望に沿えない場合もございます。
- ご希望の募集区画が無い場合、募集が掛かった際にすぐにご紹介いたします。
- ちなみに、ネット非掲載なだけで、隠し床として存在する場合もございます。
- 現在の区画を分割するなどして、造れる可能性もございます。
- 勿論、類似物件のご紹介もご希望頂ければ喜んでさせて頂きます。
当サイトはご入居希望者様向けのサイトです。ご入居に関するお問合せ以外はお答えいたしかねます
フシマン三陽ビル物件情報
- 住所
- 大阪市中央区内久宝寺町4-3-8
- 最寄駅
-
大阪メトロ谷町線 谷町四丁目駅徒歩9分
大阪メトロ長堀鶴見緑地線 松屋町駅徒歩6分 - 竣工
- 1993年6月
- 耐震
- 新耐震基準
- 階数
- 地上9階 地下1階
- 用途
- 事務所
- 構造
- SRC造
- エレベーター
- 2 基
- 空調
- 個別空調
- OAフロア
- 基準階天井高
- 光ファイバー
- 不明
- トイレ
- 男女別・室外
- 機械警備
- 有り
- 駐車場
過去募集していた区画
- 1階 31.71坪
- 4階 24.43坪
- 4階 21.18坪
- 4階 28.25坪
- 5階 28.26坪
- 5階 21.18坪
- 6階 21.11坪
- 8階 24.38坪
- 8階 32.64坪




