ステラ淀屋橋の賃貸オフィス・貸事務所【募集情報】
最終更新日:2026/04/01
- ステラ淀屋橋
- 大阪市中央区淡路町3-2-10
- 竣工/2020年10月 耐震基準/新耐震基準 基準階面積/69坪 地上11階 建て
ステラ淀屋橋は、2020年10月竣工の賃貸オフィスビルです。コンセント容量が106VA/㎡あるため、映像制作会社様等、電気容量を沢山使われる企業様には特にオススメです。
当日内見希望もよろこんで!
※管理会社様等、物件側の事情でご希望に沿えない場合もございます。
- ご希望の募集区画が無い場合、募集が掛かった際にすぐにご紹介いたします。
- ちなみに、ネット非掲載なだけで、隠し床として存在する場合もございます。
- 現在の区画を分割するなどして、造れる可能性もございます。
- 勿論、類似物件のご紹介もご希望頂ければ喜んでさせて頂きます。
当サイトはご入居希望者様向けのサイトです。ご入居に関するお問合せ以外はお答えいたしかねます
ステラ淀屋橋物件情報
- 住所
- 大阪市中央区淡路町3-2-10
- 最寄駅
-
大阪メトロ御堂筋線 淀屋橋駅徒歩7分
大阪メトロ堺筋線 北浜駅徒歩7分
大阪メトロ御堂筋線 本町駅徒歩7分
大阪メトロ堺筋線 堺筋本町駅徒歩10分 - 竣工
- 2020年10月
- 耐震
- 新耐震基準
- 階数
- 地上11階
- 用途
- 事務所
- 構造
- S造
- エレベーター
- 2 基
- 空調
- 個別空調
- OAフロア
- OAフロア
- 基準階天井高
- 2700mm
- 光ファイバー
- 有り
- トイレ
- 男女別・室外
- 機械警備
- 有り
- 駐車場
- 有り
過去募集していた区画
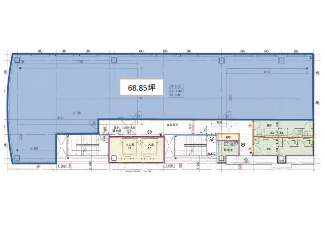
- 4階 68.85坪
- 5階 68.85坪
- 6階 68.85坪
- 7階 68.85坪
- 8階 39.75坪
- 8階 68.85坪
- 9階 19.32坪
- 9階 29.1坪
- 9階 20.43坪
- 10階 19.32坪
- 10階 29.1坪
- 10階 20.43坪
- 11階 29.1坪
- 11階 19.32坪
- 11階 20.43坪




























