ご興味のある区画を検討中リストに加え、まとめてお問合せ頂けます。
| 検討中リスト | 階 | 面積 | 賃料+共益費 坪単価 |
敷金・保証金 | 入居日 | 検討中リスト | 空室確認日 |
|---|---|---|---|---|---|---|---|
|
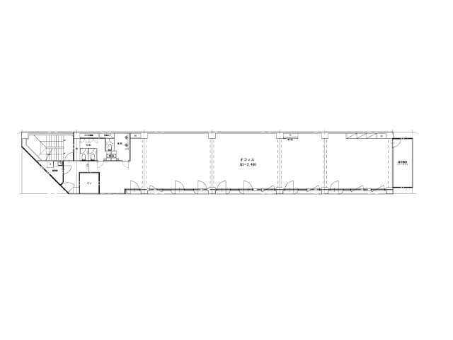
8階
ワンフロア |
52.45坪
173.4m²
|
786,750円
15,000円/坪
|
6ヶ月
|
2026年10月 | 2026/04/03 |
当日内見希望もよろこんで!
※管理会社様等、物件側の事情でご希望に沿えない場合もございます。
- ご希望の募集区画が無い場合、募集が掛かった際にすぐにご紹介いたします。
- ちなみに、ネット非掲載なだけで、隠し床として存在する場合もございます。
- 現在の区画を分割するなどして、造れる可能性もございます。
- 勿論、類似物件のご紹介もご希望頂ければ喜んでさせて頂きます。
当サイトはご入居希望者様向けのサイトです。ご入居に関するお問合せ以外はお答えいたしかねます
BEARE本町 BLDG.物件情報
- 住所
- 大阪市中央区本町2-6-5
- 最寄駅
-
大阪メトロ堺筋線 堺筋本町駅徒歩3分
大阪メトロ御堂筋線 本町駅徒歩5分 - 竣工
- 1989年3月
- 耐震
- 新耐震基準
- 階数
- 地上8階 地下1階
- 用途
- 事務所 / 店舗
- 構造
- RC造
- エレベーター
- 1 基
- 空調
- 個別空調
- OAフロア
- タイルカーペット
- 基準階天井高
- 2400mm
- 光ファイバー
- 有り
- トイレ
- 男女別・室外
- 機械警備
- 有り
- 駐車場
過去募集していた区画
- 3階 69.78坪
- 3階 73.63坪
- 4階 62.37坪
- 5階 66.2坪
- 5階 59.64坪
- 6階 59.64坪
- 6階 59.64坪
- 7階 52.45坪























