クリムトビル(KlimtBLD)の賃貸オフィス・貸事務所【募集情報】
最終更新日:2026/05/11
- クリムトビル(KlimtBLD)
- 大阪市北区西天満2-9-4
- 竣工/1990年1月 耐震基準/新耐震基準
クリムトビルは、淀屋橋駅から徒歩6分の賃貸オフィスビルです。1フロア1テナント、約20坪と小型の物件ながら、高級感のある外観・エントランスが魅力です。
ご興味のある区画を検討中リストに加え、まとめてお問合せ頂けます。
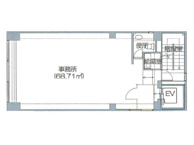
| 検討中リスト | 階 | 面積 | 賃料+共益費 坪単価 |
敷金・保証金 | 入居日 | 検討中リスト | 空室確認日 |
|---|---|---|---|---|---|---|---|
|
2階
ワンフロア |
20.78坪
68.7m²
|
250,000円
12,031円/坪
|
2ヶ月
|
即日 | 2026/05/11 |
当日内見希望もよろこんで!
※管理会社様等、物件側の事情でご希望に沿えない場合もございます。
- ご希望の募集区画が無い場合、募集が掛かった際にすぐにご紹介いたします。
- ちなみに、ネット非掲載なだけで、隠し床として存在する場合もございます。
- 現在の区画を分割するなどして、造れる可能性もございます。
- 勿論、類似物件のご紹介もご希望頂ければ喜んでさせて頂きます。
当サイトはご入居希望者様向けのサイトです。ご入居に関するお問合せ以外はお答えいたしかねます
クリムトビル(KlimtBLD)物件情報
- 住所
- 大阪市北区西天満2-9-4
- 最寄駅
-
大阪メトロ御堂筋線 淀屋橋駅徒歩6分
大阪メトロ谷町線 東梅田駅徒歩8分
JR東西線 北新地駅徒歩9分
大阪メトロ四つ橋線 西梅田駅徒歩11分 - 竣工
- 1990年1月
- 耐震
- 新耐震基準
- 階数
- 地上8階
- 用途
- 事務所
- 構造
- SRC造
- エレベーター
- 1 基
- 空調
- 個別空調
- OAフロア
- タイルカーペット
- 基準階天井高
- 光ファイバー
- 有り
- トイレ
- 男女共用・室内
- 機械警備
- 有り
- 駐車場
- 無し
過去募集していた区画
- 4階 20.78坪




















