エキスパートオフィス大阪梅田(東京建物梅田ビル)の賃貸オフィス・貸事務所【募集情報】
最終更新日:2026/02/18
- エキスパートオフィス大阪梅田(東京建物梅田ビル)
- 大阪市北区梅田1-12-26
- 竣工/1989年1月 耐震基準/新耐震基準
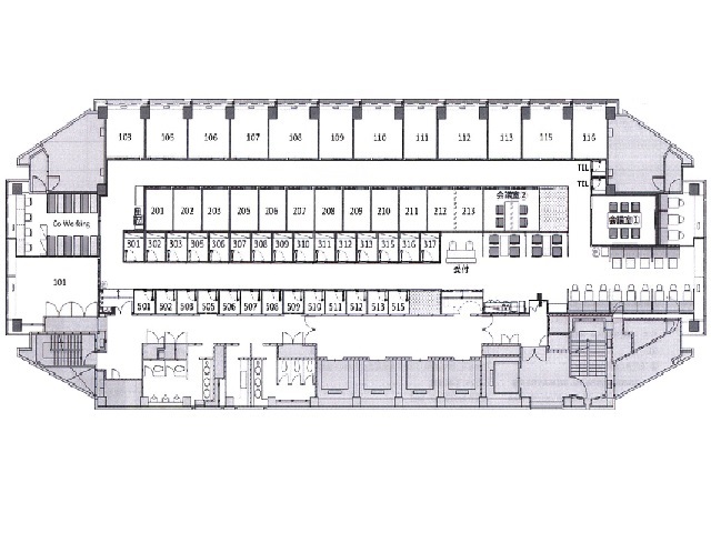
EXPERT OFFICE 大阪梅田は、東京建物大阪梅田ビルの12階に展開する、受付コンシェルジュ付きのハイグレードレンタルオフィスです。充実したサービスと付帯設備、優れた立地、風格ある大規模ビル内に展開しているという点が魅力です。
また、1名様から個室でご利用可能である点も魅力です。
また、1名様から個室でご利用可能である点も魅力です。
「エキスパートオフィス大阪梅田(東京建物梅田ビル)」には現在公開できる募集区画がございません。最新の募集状況のご確認、もしくは類似物件のご提案は、こちらよりお問い合わせ下さい。
当日内見希望もよろこんで!
※管理会社様等、物件側の事情でご希望に沿えない場合もございます。
- ご希望の募集区画が無い場合、募集が掛かった際にすぐにご紹介いたします。
- ちなみに、ネット非掲載なだけで、隠し床として存在する場合もございます。
- 現在の区画を分割するなどして、造れる可能性もございます。
- 勿論、類似物件のご紹介もご希望頂ければ喜んでさせて頂きます。
当サイトはご入居希望者様向けのサイトです。ご入居に関するお問合せ以外はお答えいたしかねます
エキスパートオフィス大阪梅田(東京建物梅田ビル)物件情報
- 住所
- 大阪市北区梅田1-12-26
- 最寄駅
-
大阪メトロ御堂筋線 梅田駅徒歩3分
JR大阪環状線 大阪駅徒歩3分
大阪メトロ谷町線 東梅田駅徒歩3分
大阪メトロ四つ橋線 西梅田駅徒歩3分 - 竣工
- 1989年1月
- 耐震
- 新耐震基準
- 階数
- 地上14階 地下4階
- 用途
- レンタルオフィス
- 構造
- S造、一部SRC造
- エレベーター
- 5 基
- 空調
- 個別空調
- OAフロア
- OAフロア
- 基準階天井高
- 光ファイバー
- 有り
- トイレ
- 男女別・室外
- 機械警備
- 有り
- 駐車場
過去募集していた区画
- 5階 9.18坪
- 5階 0.96坪
- 12階 3.66坪
- 12階 1.63坪
- 12階 3.66坪
- 12階 2.96坪
- 12階 0.85坪
- 12階 0.67坪
- 12階 7.8坪
- 12階 0.67坪
- 12階 2.69坪
- 12階 1.63坪
- 12階 0.85坪
- 12階 0.67坪
- 12階 3.66坪
- 12階 2.96坪
- 12階 0.85坪
- 12階 1.63坪

























