淀屋橋ステーションワンの賃貸オフィス・貸事務所【募集情報】
- 淀屋橋ステーションワン
- 大阪市中央区北浜3-6-22
- 竣工/2025年5月 耐震基準/新耐震基準 基準階面積/587坪 地上31階 地下3階建て
ビルは制震構造を採用しており、耐震性能が高く、特高3回線のネットワーク受電や非常用発電機が備わっており、最大72時間の電力供給が可能なBCP(事業継続計画)性能も特徴です。また、テナント用に非常用発電機の設置スペースも提供されており、万一の際にも業務を継続しやすい環境が整っています。
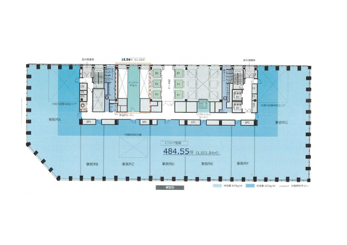
オフィスフロアの天井高は2,900mm、OAフロアや電動ブラインド、システムグリッド天井など、快適かつ効率的に仕事ができる環境を提供しています。電気容量も50VA/㎡と豊富かつ増設も可能で、Low-Eペアガラスや自動調光LED照明など、エネルギー効率を高める設計も施されています。床荷重も500㎏/㎡(一部は800㎏/㎡)としっかりしており、重量物を扱う業務にも対応可能です。加えて、10階にはテナント専用のワーカーラウンジがあり、リフレッシュや打ち合わせに便利なスペースが用意されています。
淀屋橋ステーションワンは、CASBEEやDBJ GreenBuilding認証などの環境性能においても高い評価を受けています。加えて御堂筋や中之島を一望できる眺望の良さも魅力の一つです。
ハイスペックな分、賃料が高めに設定されている点がウィークポイントですが、アクセスの良さや高いBCP性能を重視する企業には、特に魅力的なオフィスビルといえるでしょう。
御堂筋の最先端に淀屋橋エリア最高峰のオフィスビル誕生
『2025年の大阪・関西万博を控え、国際都市として進化を続ける「大阪」。その中心部に、新たな価値を秘めたランドマークビルが誕生します。地上約150mの高さは、淀屋橋から本町までの御堂筋沿いにおいてエリアNo1を誇り、御堂筋沿いのビルのスカイラインと連なるデザインが統一感のある都市景観を創出。窓からの絶景がイマジネーションを刺激し、さらなる高みを目指す挑戦を後押しします』※(仮称)淀屋橋駅東プロジェクト公式パンフレットより
| 検討中リスト | 階 | 面積 | 賃料+共益費 坪単価 |
敷金・保証金 | 入居日 | 検討中リスト | 空室確認日 |
|---|---|---|---|---|---|---|---|
|
17階
G |
137.51坪
454.61m²
|
相談
|
相談
|
相談 | 2026/02/05 | ||
|
18階
G |
137.51坪
454.61m²
|
相談
|
相談
|
相談 | 2026/02/05 | ||
|
23階
B |
89.01坪
294.27m²
|
相談
|
相談
|
相談 | 2026/02/05 | ||
|
23階
A |
125.46坪
414.77m²
|
相談
|
相談
|
相談 | 2026/02/05 | ||
|
23階
AB |
214.47坪
709.04m²
|
相談
|
相談
|
相談 | 2026/02/05 |
淀屋橋ステーションワンには3件の仲介実績がございます。
ビルオーナー様とも信頼関係が築けておりますので、安心してお問合せ下さい。
当日内見希望もよろこんで!
- ご希望の募集区画が無い場合、募集が掛かった際にすぐにご紹介いたします。
- ちなみに、ネット非掲載なだけで、隠し床として存在する場合もございます。
- 現在の区画を分割するなどして、造れる可能性もございます。
- 勿論、類似物件のご紹介もご希望頂ければ喜んでさせて頂きます。
淀屋橋ステーションワン物件情報
- 住所
- 大阪市中央区北浜3-6-22
- 最寄駅
- 大阪メトロ御堂筋線 淀屋橋駅徒歩1分
- 竣工
- 2025年5月
- 耐震
- 新耐震基準
- 階数
- 地上31階 地下3階
- 用途
- 事務所
- 構造
- S造、一部SRC造
- エレベーター
- 12 基
- 空調
- 個別空調
- OAフロア
- OAフロア
- 基準階天井高
- 2900mm
- 光ファイバー
- 有り
- トイレ
- 男女別・室外
- 機械警備
- 有り
- 駐車場
- 有り
「淀屋橋駅」直結抜群のアクセス力で、全国のビジネスエリアへ
淀屋橋駅改札からオフィスロビーまで、スムーズにアプローチ
本物件最大の魅力は、やはりそのアップローチです。
京阪電車の淀屋橋駅と御堂筋線の淀屋橋駅の丁度間に地下からの入口があり、そのまま3Fオフィスロビーにエスカレーターで上がれます。
また、1階のエントランスは御堂筋に面しており、こちらからも3Fオフィスロビーへダイレクトにエスカレーターで上がれます。
3Fオフィスロビーからは、低層階、中層階、高層階とそれぞれエレベーターを分ける事で、混雑を減らしスムーズにお部屋へアクセスできます。
3階のオフィスロビーでは、気分を変えての仕事や、カジュアルな商談が出来るワークラウンジを併設予定です。
10Fワーカーラウンジ
館内テナント様が自由に使えるラウンジスペースが展開されます。
ちょっとした打合せや、ランチタイムやフレッシュタイムにご活用頂けます。
また、気分を変えてのPC作業にもピッタリです。
■ソロブース(従量課金制)
Web会議に便利な、1名様用の時間貸し個室ブースを18席程度用意される予定です。
貸会議室同様、専用サイトよりご予約可能です。
■貸会議室
時間貸しの貸会議室のご用意もございます。
専用サイトから簡単にご予約・利用状況の確認ができます。
※館内テナント様専用では有りますが、優先的にご予約頂けます。
【大会議室】
20~40名用×3部屋 ※連結可能
【中会議室】
10名用×2部屋、12名用×1部屋
1フロア約480坪の無柱空間。分割のバリエーションも豊富です。
耐震性能
環境性能
BCP























