ご興味のある区画を検討中リストに加え、まとめてお問合せ頂けます。
| 検討中リスト | 階 | 面積 | 賃料+共益費 坪単価 |
敷金・保証金 | 入居日 | 検討中リスト | 空室確認日 |
|---|---|---|---|---|---|---|---|
|
一棟
|
2,108.87坪
6,971.92m²
|
10,544,350円
5,000円/坪
|
6ヶ月
|
即日 | 2026/04/06 |
当日内見希望もよろこんで!
※管理会社様等、物件側の事情でご希望に沿えない場合もございます。
- ご希望の募集区画が無い場合、募集が掛かった際にすぐにご紹介いたします。
- ちなみに、ネット非掲載なだけで、隠し床として存在する場合もございます。
- 現在の区画を分割するなどして、造れる可能性もございます。
- 勿論、類似物件のご紹介もご希望頂ければ喜んでさせて頂きます。
当サイトはご入居希望者様向けのサイトです。ご入居に関するお問合せ以外はお答えいたしかねます
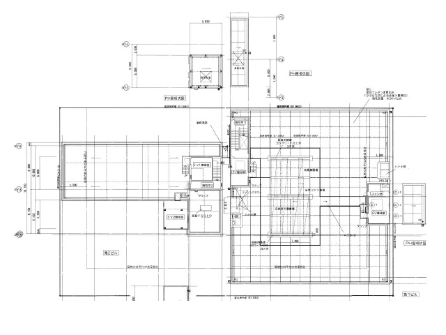
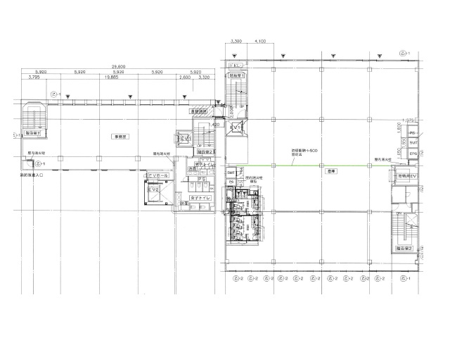
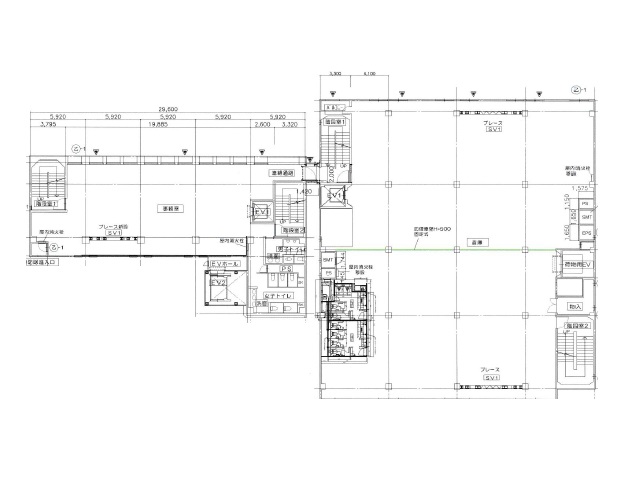
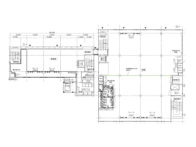
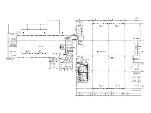
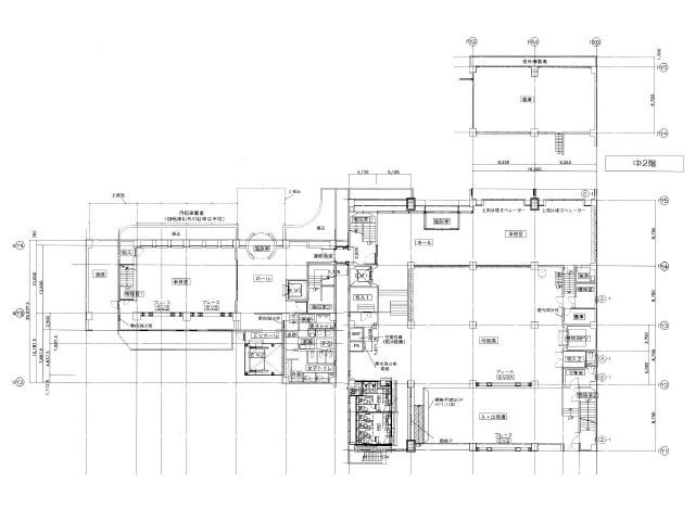
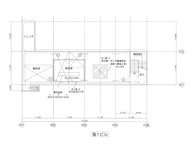
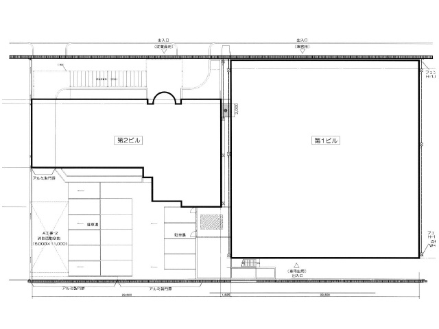
大磯箕面第1・2ビル物件情報
- 住所
- 箕面市船場東3-6-13
- 最寄駅
- 北大阪急行電鉄 箕面船場阪大前駅徒歩5分
- 竣工
- 1973年11月
- 耐震
- 耐震補強済
- 階数
- 地上6階 地下1階
- 用途
- 事務所 / 倉庫・工場
- 構造
- RC造、一部S造
- エレベーター
- 2 基
- 空調
- OAフロア
- 基準階天井高
- 光ファイバー
- トイレ
- 男女別・室外
- 機械警備
- 駐車場
- 有り
過去募集していた区画
- 一棟 1,533.96坪
- 一棟 569.46坪





































