TSHG淀屋橋ビルの賃貸オフィス・貸事務所【募集情報】
最終更新日:2026/02/18
- TSHG淀屋橋ビル
- 大阪市中央区今橋2-6-14
- 竣工/2008年1月 耐震基準/新耐震基準 基準階面積/133坪 地上10階 地下2階建て
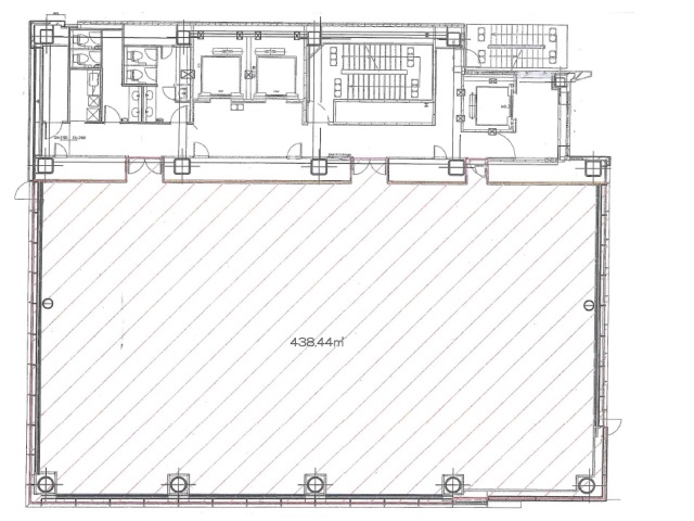
TSHG淀屋橋ビルは、淀屋橋駅から徒歩2分、大阪市中央区今橋2丁目に位置する賃貸オフィスビルです。元:関西ペイントの自社ビルで、2008年竣工の比較的築浅のビルです。1フロア132坪、10階建ての大型ビルで、貸室スペックも比較的高めです。天井高2700㎜の無柱空間、OAフロア(100㎜)、電気容量は50VA/㎡、EVは常用が2基で非常用が1基です。周辺環境は大阪ビジネスエリアの中心地と言うこともあり、銀行や郵便局、飲食店やコンビニも豊富で快適な環境です。
当日内見希望もよろこんで!
※管理会社様等、物件側の事情でご希望に沿えない場合もございます。
- ご希望の募集区画が無い場合、募集が掛かった際にすぐにご紹介いたします。
- ちなみに、ネット非掲載なだけで、隠し床として存在する場合もございます。
- 現在の区画を分割するなどして、造れる可能性もございます。
- 勿論、類似物件のご紹介もご希望頂ければ喜んでさせて頂きます。
当サイトはご入居希望者様向けのサイトです。ご入居に関するお問合せ以外はお答えいたしかねます
TSHG淀屋橋ビル物件情報
- 住所
- 大阪市中央区今橋2-6-14
- 最寄駅
-
大阪メトロ御堂筋線 淀屋橋駅徒歩3分
大阪メトロ堺筋線 北浜駅徒歩4分 - 竣工
- 2008年1月
- 耐震
- 新耐震基準
- 階数
- 地上10階 地下2階
- 用途
- 事務所
- 構造
- S造、一部SRC造
- エレベーター
- 3 基
- 空調
- 個別空調
- OAフロア
- OAフロア / タイルカーペット
- 基準階天井高
- 2700mm
- 光ファイバー
- 有り
- トイレ
- 男女別・室外
- 機械警備
- 有り
- 駐車場
- 有り
過去募集していた区画
- 3階 132.62坪
- 4階 132.62坪
- 5階 132.62坪
- 7階 132.62坪
- 8階 132.62坪
- 9階 132.62坪
- 10階 132.62坪
2024年10月21日:個別内覧会を開いていただきました
管理会社様のご厚意で、弊社単独の個別内覧会を開いて頂き、TSHG淀屋橋ビルを拝見して来ました。
築浅で部屋の中に柱のない、シンプルで非常に使いやすそうな物件だと感じました。
残念なのは、分割による貸し出しが設備的に難しいとのことで、130坪の貸室パターンのみと言うのが残念でした。
ちなみに、まだ未定ですが、2階はもともと前オーナーが貸会議室として利用していたフロアで、小割にされた会議室スペースが複数ありました。
運用方法はまだ検討中ですが、貸会議室業者に運営委託をする方向性で動かれているとのこと。
もし貸会議室となれば、入居テナント様専用とはいかないまでも、割引や優待などでご利用頂けるようにしたいとのことでした。
ですので、130坪では少し小さいと感じるお客様にも、貸会議室をうまく活用いただくことでマッチングしそうだなと感じました。
また、1階テナントにはトヨタレンタカーが入りますので、レンタカーニーズの多い企業様にも便利そうです。
筆者:慈幸



























