UMEDA EAST CROSSの賃貸オフィス・貸事務所【募集情報】
最終更新日:2026/03/19
- UMEDA EAST CROSS
- 大阪市北区堂山町111-1
- 竣工/2025年9月 耐震基準/新耐震基準 基準階面積/159坪 地上14階 建て
UMEDA EAST CROSSは、大阪市北区堂山町に位置する賃貸オフィスビルです。2025年9月竣工の築浅ハイスペックなインテリジェントビルです。立地も良く、泉の広場から地上に出て約1分、新御堂筋に面した立地です。
■IOTを駆使したインテリジェントオフィス
※テナント専用WEBアプリを導入(予定)
・証明・空調などの操作
・エネルギーの見える化
・センサー照明の省エネ化
・空気の見える化と自動制御
・トイレなどの利用状況確認
・ビル管理室からの連絡
など
■IOTを駆使したインテリジェントオフィス
※テナント専用WEBアプリを導入(予定)
・証明・空調などの操作
・エネルギーの見える化
・センサー照明の省エネ化
・空気の見える化と自動制御
・トイレなどの利用状況確認
・ビル管理室からの連絡
など
ご興味のある区画を検討中リストに加え、まとめてお問合せ頂けます。
| 検討中リスト | 階 | 面積 | 賃料+共益費 坪単価 |
敷金・保証金 | 入居日 | 検討中リスト | 空室確認日 |
|---|---|---|---|---|---|---|---|
|
2階
|
159.32坪
526.71m²
|
相談
|
12ヶ月
|
即日 | 2026/03/19 | ||
|
2階
D |
25.43坪
84.07m²
|
相談
|
12ヶ月
|
相談 | 2026/03/19 | ||
|
2階
C |
23.27坪
76.93m²
|
相談
|
12ヶ月
|
相談 | 2026/03/19 | ||
|
2階
B |
56.46坪
186.66m²
|
相談
|
12ヶ月
|
相談 | 2026/03/19 | ||
|
2階
A |
54.15坪
179.02m²
|
相談
|
12ヶ月
|
相談 | 2026/03/19 | ||
|
4階
A |
54.15坪
179.02m²
|
相談
|
12ヶ月
|
相談 | 2026/03/19 | ||
|
6階
A |
54.15坪
179.02m²
|
相談
|
12ヶ月
|
相談 | 2026/03/19 | ||
|
6階
BC |
77.73坪
256.98m²
|
相談
|
12ヶ月
|
2026/03/19 | |||
|
6階
AB |
110.61坪
365.68m²
|
相談
|
12ヶ月
|
2026/03/19 | |||
|
6階
D |
25.43坪
84.07m²
|
相談
|
12ヶ月
|
2026/03/19 | |||
|
6階
C |
23.27坪
76.93m²
|
相談
|
12ヶ月
|
2026/03/19 | |||
|
6階
B |
56.46坪
186.66m²
|
相談
|
12ヶ月
|
2026/03/19 | |||
|
6階
|
159.32坪
526.71m²
|
相談
|
12ヶ月
|
即日 | 2026/03/19 | ||
|
9階
|
159.32坪
526.71m²
|
相談
|
12ヶ月
|
即日 | 2026/03/19 | ||
|
10階
|
159.32坪
526.71m²
|
相談
|
12ヶ月
|
即日 | 2026/03/19 | ||
|
11階
|
159.32坪
526.71m²
|
相談
|
12ヶ月
|
即日 | 2026/03/19 | ||
|
12階
|
159.32坪
526.71m²
|
相談
|
12ヶ月
|
即日 | 2026/03/19 | ||
|
13階
|
159.32坪
526.71m²
|
相談
|
12ヶ月
|
即日 | 2026/03/19 | ||
|
14階
|
159.32坪
526.71m²
|
相談
|
12ヶ月
|
即日 | 2026/03/19 |
建築中ですが、事前予約にて先行仕上げフロアをご内覧可能です。
※管理会社様等、物件側の事情でご希望に沿えない場合もございます。
- ご希望の募集区画が無い場合、募集が掛かった際にすぐにご紹介いたします。
- ちなみに、ネット非掲載なだけで、隠し床として存在する場合もございます。
- 現在の区画を分割するなどして、造れる可能性もございます。
- 勿論、類似物件のご紹介もご希望頂ければ喜んでさせて頂きます。
当サイトはご入居希望者様向けのサイトです。ご入居に関するお問合せ以外はお答えいたしかねます
意外とと言っては失礼ですが、好立地です。
新御堂筋沿いとは言え、東梅田エリアですので、大阪駅ベースでみた場合ちょっと遠いと思われがちです。
しかし、泉の広場上のM2出入口を出てすぐの立地であり、ホワイティ梅田をまっすぐ行けば各路線にアクセスできるため、動線もシンプルで意外とアクセスに優れていると感じました。
多彩なビジネスシーンに相応しい格調ある共用エリア
エコロジー性と安全性を追求した先進のシステムを導入
快適で機能的なフロアスペック
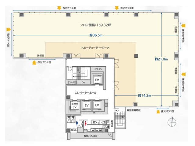
レイアウトサンプル
UMEDA EAST CROSS物件情報
- 住所
- 大阪市北区堂山町111-1
- 最寄駅
-
JR大阪環状線 大阪駅徒歩8分
大阪メトロ御堂筋線 梅田駅徒歩1分
大阪メトロ谷町線 東梅田駅徒歩1分 - 竣工
- 2025年9月
- 耐震
- 新耐震基準
- 階数
- 地上14階
- 用途
- 事務所 / 店舗
- 構造
- S造
- エレベーター
- 4 基
- 空調
- 個別空調
- OAフロア
- OAフロア
- 基準階天井高
- 2800mm
- 光ファイバー
- 有り
- トイレ
- 男女別・室外
- 機械警備
- 有り
- 駐車場
- 有り
過去募集していた区画
- 3階 159.32坪
- 4階 159.32坪
- 5階 159.32坪
- 7階 159.32坪
- 8階 159.32坪




























