PMO EX 本町の賃貸オフィス・貸事務所【募集情報】
最終更新日:2026/04/14
- PMO EX 本町
- 大阪市中央区本町3-1-10
- 竣工/2025年4月 耐震基準/新耐震基準 基準階面積/233坪 地上14階 建て
PMO EX 本町は、本町駅から徒歩3分の賃貸オフィスビルです。PMOシリーズの中で、大阪最大の当物件は、本町通に面した立地に、存在感ある佇まいでオープンしました。5階に共用ラウンジ有。
・停電対策として、2回線受電を採用し、停電時も72時間電力供給可能。
・下層階のH¹Oと組み合わせることで面積の大幅圧縮が可能。
・5段階のセキュリティ、EV前のセキュリティゲート、該当階のみ停止するEVセキュリティ。
・保証会社利用により敷金0円対応可能。
・停電対策として、2回線受電を採用し、停電時も72時間電力供給可能。
・下層階のH¹Oと組み合わせることで面積の大幅圧縮が可能。
・5段階のセキュリティ、EV前のセキュリティゲート、該当階のみ停止するEVセキュリティ。
・保証会社利用により敷金0円対応可能。
2025年4月竣工予定
ご興味のある区画を検討中リストに加え、まとめてお問合せ頂けます。
※当物件は特殊物件のため、最新の募集状況に関しましてはお問合せ頂けますようお願い致します。
| 検討中リスト | 階 | 面積 | 賃料+共益費 坪単価 |
敷金・保証金 | 入居日 | 検討中リスト | 空室確認日 |
|---|---|---|---|---|---|---|---|
|
5階
2 セットアップ |
123.2坪
407.3m²
|
相談
|
相談
|
即日 | ※ | ||
|
6階
ハーセットアップ予定 |
123.2坪
407.3m²
|
相談
|
相談
|
2026年4月 | ※ | ||
|
9階
4 セットアップ |
37.99坪
125.59m²
|
相談
|
相談
|
2026年7月 | ※ | ||
|
9階
23 |
162.14坪
536.03m²
|
相談
|
相談
|
相談 | ※ | ||
|
10階
ワンフロア 先行有 |
232.95坪
770.13m²
|
相談
|
相談
|
即日 | ※ | ||
|
13階
3 |
38.93坪
128.7m²
|
相談
|
相談
|
2026年8月 | ※ | ||
|
13階
1 セットアップ |
32.82坪
108.5m²
|
相談
|
相談
|
2026年8月 | ※ |
当日内見希望もよろこんで!
※管理会社様等、物件側の事情でご希望に沿えない場合もございます。
- ご希望の募集区画が無い場合、募集が掛かった際にすぐにご紹介いたします。
- ちなみに、ネット非掲載なだけで、隠し床として存在する場合もございます。
- 現在の区画を分割するなどして、造れる可能性もございます。
- 勿論、類似物件のご紹介もご希望頂ければ喜んでさせて頂きます。
当サイトはご入居希望者様向けのサイトです。ご入居に関するお問合せ以外はお答えいたしかねます
PMO EX 本町物件情報
- 住所
- 大阪市中央区本町3-1-10
- 最寄駅
-
大阪メトロ御堂筋線 本町駅徒歩3分
大阪メトロ堺筋線 堺筋本町駅徒歩4分 - 竣工
- 2025年4月
- 耐震
- 新耐震基準
- 階数
- 地上14階
- 用途
- 事務所 / その他
- 構造
- S造
- エレベーター
- 5 基
- 空調
- 個別空調
- OAフロア
- OAフロア
- 基準階天井高
- 2800mm
- 光ファイバー
- 有り
- トイレ
- 男女別・室外
- 機械警備
- 有り
- 駐車場
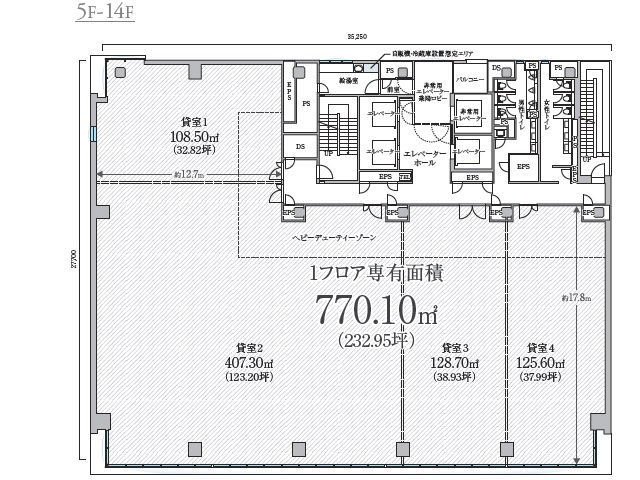
PMOシリーズ最大の1フロア約232坪
レイアウトイメージ
PMOと言えば、ホテル並みにラグジュアリーな水回りが魅力的です。
セキュリティ
PMO EX 本町は、警備会社と連携した先進のセキュリティシステムが導入されます。
オフィスユーザーの安全を守るのはもちろん、大切な企業資産や顧客情報の保護にも配慮し、24時間365日安心して働ける厳重なセキュリティを構築されます。
耐震性能
PMO EX 本町は免震構造に加え、造新耐震基準の1.5倍相当の耐震強度を持つ「I類構造体」が採用されています。
停電対策~非常用発電機有~
PMO EX 本町の非常用発電機は、共用部のみならず専用部にまで供給可能です。
当該規模のオフィスビルとしては、かなり稀です。
環境性能
PMO EX 本町は、環境にも配慮されています。
過去募集していた区画
- 5階 32.82坪
- 5階 232.95坪
- 6階 32.82坪
- 7階 232.95坪
- 8階 232.95坪
- 9階 32.82坪
- 9階 232.95坪
- 11階 232.95坪
- 12階 232.95坪
- 12階 37.99坪
- 12階 38.93坪
- 12階 32.82坪
- 12階 123.2坪
- 12階 76.92坪
- 13階 37.99坪
- 13階 123.2坪
- 13階 232.95坪



































