ご興味のある区画を検討中リストに加え、まとめてお問合せ頂けます。
| 検討中リスト | 階 | 面積 | 賃料+共益費 坪単価 |
敷金・保証金 | 入居日 | 検討中リスト | 空室確認日 |
|---|---|---|---|---|---|---|---|
|
3階
C(内定) |
88.26坪
291.79m²
|
相談
|
相談
|
2026年9月 | 2026/02/12 | ||
|
3階
B |
57.39坪
189.73m²
|
相談
|
相談
|
2026年4月 | 2026/02/12 | ||
|
3階
A |
90.84坪
300.32m²
|
相談
|
相談
|
2026年9月 | 2026/02/12 | ||
|
4階
A |
90.84坪
300.32m²
|
相談
|
相談
|
2026年9月 | 2026/02/12 | ||
|
4階
BC |
145.65坪
481.52m²
|
相談
|
相談
|
2026年9月 | 2026/02/12 | ||
|
5階
|
236.5坪
781.87m²
|
相談
|
相談
|
2026年9月 | 2026/02/12 | ||
|
6階
|
236.5坪
781.87m²
|
相談
|
相談
|
2026年9月 | 2026/02/12 | ||
|
7階
|
236.5坪
781.87m²
|
相談
|
相談
|
2026年9月 | 2026/02/12 | ||
|
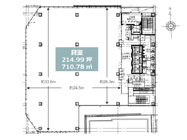
8階
|
215.16坪
711.32m²
|
相談
|
相談
|
2026年9月 | 2026/02/12 |
当日内見希望もよろこんで!
※管理会社様等、物件側の事情でご希望に沿えない場合もございます。
- ご希望の募集区画が無い場合、募集が掛かった際にすぐにご紹介いたします。
- ちなみに、ネット非掲載なだけで、隠し床として存在する場合もございます。
- 現在の区画を分割するなどして、造れる可能性もございます。
- 勿論、類似物件のご紹介もご希望頂ければ喜んでさせて頂きます。
当サイトはご入居希望者様向けのサイトです。ご入居に関するお問合せ以外はお答えいたしかねます
SYNASIA本町ビル物件情報
- 住所
- 大阪市中央区本町3-9-9
- 最寄駅
- 大阪メトロ御堂筋線 本町駅徒歩1分
- 竣工
- 2026年2月
- 耐震
- 新耐震基準
- 階数
- 地上14階 地下1階
- 用途
- 事務所
- 構造
- S造
- エレベーター
- 4 基
- 空調
- 個別空調
- OAフロア
- OAフロア
- 基準階天井高
- 2800mm
- 光ファイバー
- 有り
- トイレ
- 男女別・室外
- 機械警備
- 有り
- 駐車場
過去募集していた区画
- 2階 236.5坪
- 3階 236.5坪
- 4階 236.49坪
- 8階 69.49坪
- 8階 57.39坪
- 8階 88.26坪
- 8階 147.88坪
- 9階 215.16坪
- 10階 215.16坪
- 11階 215.16坪







