THE VILLAGE OSAKAのご紹介

堺筋本町駅徒歩約2分の本町通面した物件にてセットアップオフィスが募集となります。
37坪のフルセットアップはもちろんのこと、40坪から60坪のハーフセットアップの区画や専用のテラスがついているお部屋などバリエーション様々でお客様のご希望に沿った事務所をご検討いただけます。
契約形態と期間:定期建物賃貸借契約2年(年数においては要相談)
※2年以内の解約は不可となります。
保証会社加入により、敷金0ヶ月でご入居が可能となります。
【1階】ラウンジカフェ



ビル1Fには入居テナント様専用のラウンジカフェスペースを設けており、全日7:00~20:00までご利用いただけます。
お昼ご飯をとったり、ちょっとした打合せの時にご自由にご利用いただけるリフレッシュスペースとなっております。
【2階共用部】テレカンブース&ミーティングルーム


最大20名程度まで対応の大会議室は、社内でのご利用はもちろんのこと、来客対応やプレゼントテーションなどにもご利用いただけます。
Web会議の際に便利なテレカンブースも完備しており、静かな環境でのオンラインミーティングが可能です。
どちらも予約制でございますので、必要なタイミングに合わせてご利用いただけます。
【2階】フルセットアップ 37.53坪



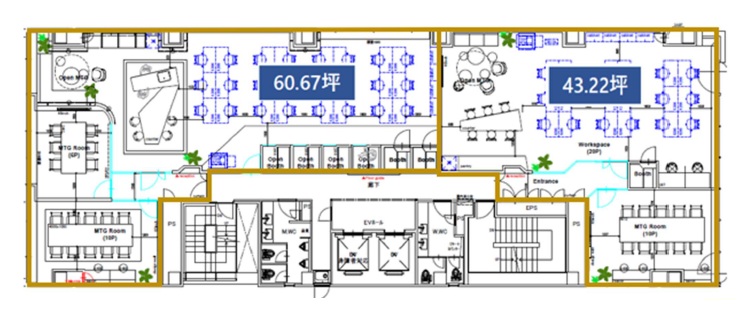
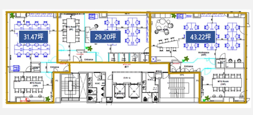
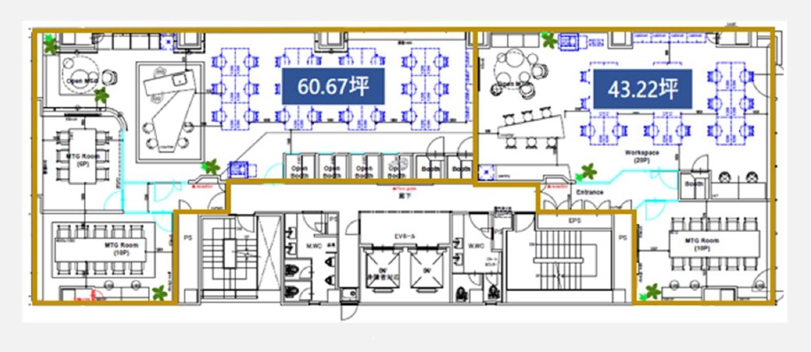
【3・7・8階】ハーフセットアップ(キッチン付) 60.67坪 43.22坪







【4・5・6階】未定(将来セットアップ検討予定)


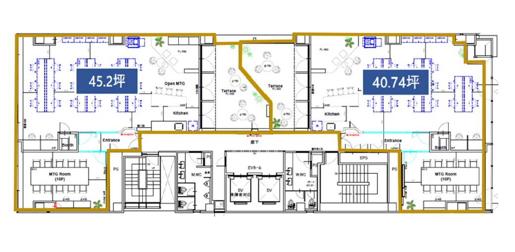
【9階】ハーフセットアップ(テラス・キッチン付) 45.2坪 40.74坪



お問合せ
内覧のご希望や、賃貸条件のご確認は下記までお気軽にお問合せ下さい。
株式会社クイックコンサルティング 大阪支店
取引態様:媒介 国土交通大臣(4)第7938号
〒550-0004 大阪市西区靱本町1-11-7 信濃橋三井ビル11階
TEL:06-6147-9791 FAX:06-6147-9792
担当:古田(ふるた) 携帯:070-2240-8581
お問合せの際は「クイック検索大阪を見た」とお伝えください