【ハーフセットアップオフィス】日建ビル1号階【128.24坪】
【淀屋橋・肥後橋エリア】2025年にフルリニューアルされたゼノベオフィス、日建ビル1号館4階の128.24坪ハーフセットアップオフィスのご紹介です。
ハーフセットアップオフィスとは、特に施工に費用の掛かる会議室等の間仕切りと、デザインセンスの求められるエントランス等の執務スペース以外の部分をセットアップオフィスとして貸し出し、執務スペースに関しては自由にレイアウトが出来るタイプの賃貸方式です。
肥後橋駅から徒歩3分、淀屋橋駅から徒歩5分。
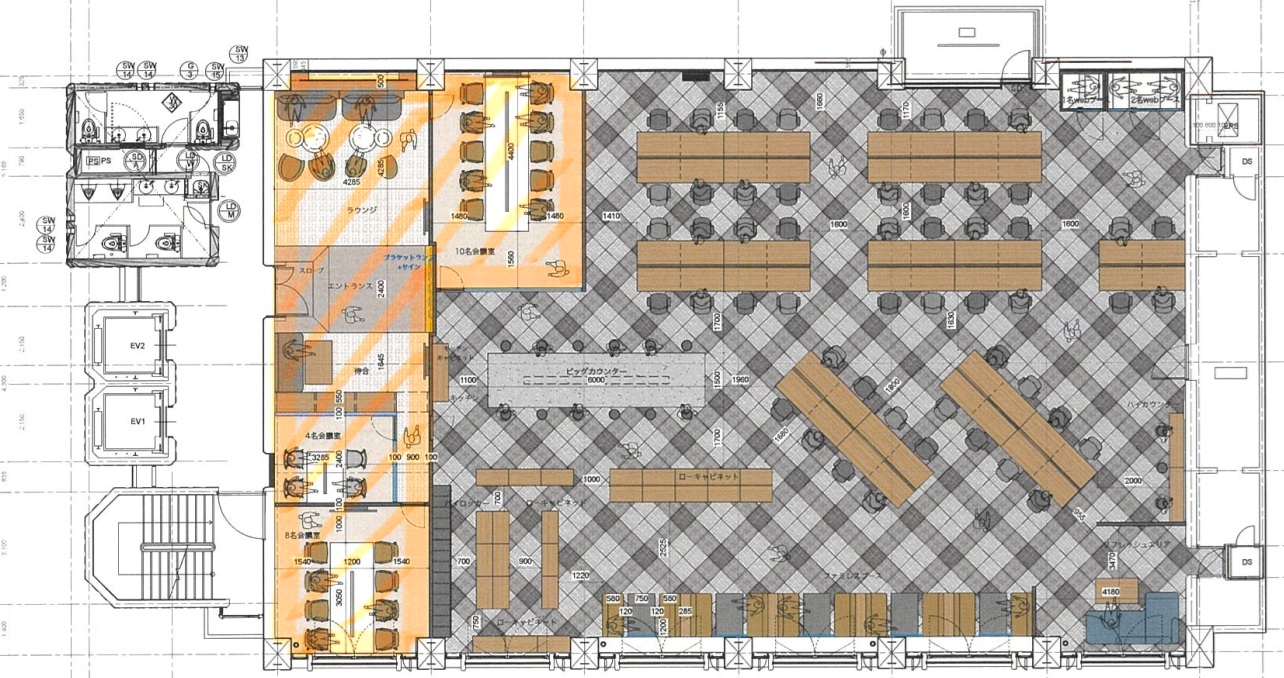
レイアウト図
オレンジの斜線エリアのみが家具什器付きとなります。
エントランス、ラウンジ、4名用会議室、8名用会議室、10名用会議室
執務スペースは約60名前後を想定した無柱のゆとりのあるスペースが確保されています。
内覧のご希望や、賃貸条件のご確認は下記までお気軽にお問合せ下さい。
株式会社クイックコンサルティング 大阪支店
取引態様:媒介 国土交通大臣(4)第7938号
〒550-0004 大阪市西区靱本町1-11-7 信濃橋三井ビル11階
TEL:06-6147-9791 FAX:06-6147-9792
担当:慈幸(じこう) 携帯:080-5681-4211
お問合せの際は「クイック検索大阪を見た」とお伝えください
イメージパース
2026年3月完工予定のため、イメージパースとなります。
天井スケルトン、柱のない空間、採光たっぷりの明るく開放的な空間が魅力です
日建ビル1号館
アクセス
お問合せ
内覧のご希望や、賃貸条件のご確認は下記までお気軽にお問合せ下さい。
株式会社クイックコンサルティング 大阪支店
取引態様:媒介 国土交通大臣(4)第7938号
〒550-0004 大阪市西区靱本町1-11-7 信濃橋三井ビル11階
TEL:06-6147-9791 FAX:06-6147-9792
担当:慈幸(じこう) 携帯:080-5681-4211
お問合せの際は「クイック検索大阪を見た」とお伝えください
物件概要
所在地:大阪市中央区高麗橋四丁目6番12号(住居表示)
アクセス:
大阪メトロ御堂筋線「淀屋橋」駅 徒歩5分
大阪メトロ四つ橋線「肥後橋」駅 徒歩3分
構造・規模:鉄骨鉄筋コンクリート造・鉄筋コンクリート造/地上7階・地下1階・塔屋1階
竣工年月:1968年8月(2025年フルリニューアル)
耐震性:新耐震基準相当を満たす
延床面積:4,140.97㎡(1,252.64坪)
空調方式:個別空調
エレベーター:2基
天井高:
1~5階 3,140mm
6階 3,040mm
7階 2,800~2,878mm
B1階 4,015mm(一部3,500mmあり)
備考:いずれも天井躯体現し(7階のみ天井躯体部がロックウール吸音板)
床上げ:OAフロアなし(OA敷設 応相談)
床荷重:300kg/㎡
電気容量:約60VA/㎡(基準階)
床仕様:リノリウム床シート
照明設備:標準LED照明(リーラーコンセント付き)
貸室内設備:給排水引込可(各フロア毎・要相談)
駐車場:5台
駐輪場:6台(自動二輪の場合3台)
機械警備:有


